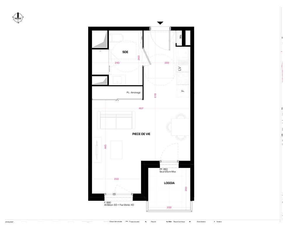
Appartement T1 n°1124 à Villeurbanne (69100)
Prix : nous consulter
Dua - Nouveau A Villeurbanne à Villeurbanne
À noter
- Villeurbanne
- Livraison 4ème trimestre 2027
- Résidence principale/secondaire
- Investissement locatif
- Votre suivi personnalisé Peterson.fr
- Garanti prix direct promoteur
À propos du programme
Découvrez la nouvelle résidence NEXITY, en plein coeur de Villeurbanne : DUA ! Située dans un environnement vivant et dynamique, notre résidence vous ouvre les portes de la propriété à Villeurbanne : une occasion unique de réaliser votre projet immobilier dans des conditions avantageuses, grâce à la TVA à taux réduite à 5,5%. À quelques minutes en transport en commun du campus universitaire de la Doua et du futur pôle d'activités économiques de Croix-Luizet, bénéficiez d'une proximité immédiate des arrêts de tramway et de bus, facilitant vos déplacements quotidiens. Découvrez des appartements du studio au 5 pièces s'ouvrant sur des espaces extérieurs, de quoi profiter des beaux jours en famille ou entre amis. Pour assurer votre confort, la résidence propose des places de stationnement en sous-sol. La résidence vous offre une parenthèse de fraîcheur avec son espace partagé et ombragé en coeur d'îlot.
Villeurbanne
En travaux

Accédez à notre page dédiée au programme "Dua - Nouveau A Villeurbanne" pour tout savoir sur la résidence, ses prestations et son quartier.



