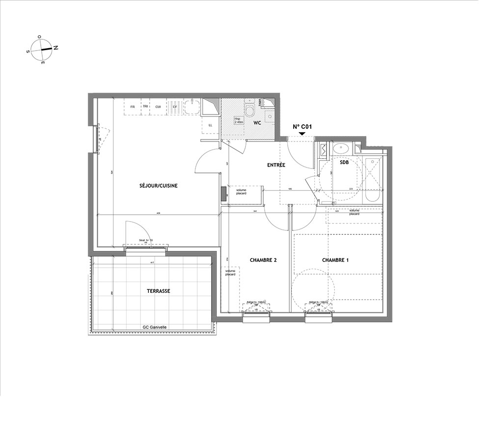
Appartement T3 n°C01 à Décines-Charpieu (69150)
Prix : nous consulter
Jardins Du Large à Décines-Charpieu
À noter
- Décines-Charpieu
- Livraison 1er trimestre 2028
- Résidence principale/secondaire
- Investissement locatif
- Votre suivi personnalisé Peterson.fr
- Garanti prix direct promoteur
Prestations et équipements
À propos du programme
Vivre à Décines-Charpieu, c’est choisir un équilibre rare entre ville et nature, aux portes de Lyon. Les nombreuses pistes cyclables et le Tramway à 750 m simplifient vos déplacements au quotidien.
Dans ce cadre privilégié, laissez vous séduire par une résidence contemporaine à l’architecture chaleureuse, alliant lignes fluides et couleurs profondes, entourée d’un vaste parc arboré. Du 2 au 5 pièces, les appartements offrent des plans agréables à vivre et s’ouvrent sur de beaux espaces extérieurs, dont d’exceptionnelles terrasses plein ciel au dernier étage. Cinq maisons de 4 et 5 pièces avec jardins concentrent tout le charme d’un havre de nature en ville.
Décines-Charpieu
En travaux

Accédez à notre page dédiée au programme "Jardins Du Large" pour tout savoir sur la résidence, ses prestations et son quartier.
Autres biens disponibles
Le programme « Jardins Du Large » s'intègre dans le marché immobilier local
Décines-Charpieu bénéficie du projet immobilier neuf « Jardins Du Large ». Ce projet propose toujours 36 de ses 63 appartements neufs qui ne sont pas encore réservés. Ils sont de type T2, T3 et T4 et peuvent faire office de résidence principale ou secondaire et d'investissement locatif. Vous serez libres d'avoir accès à votre bien, éligible aux dispositifs de droit commun et LMNP (loueur en meublé non professionnel) hors bail commercial, fin septembre 2028.
