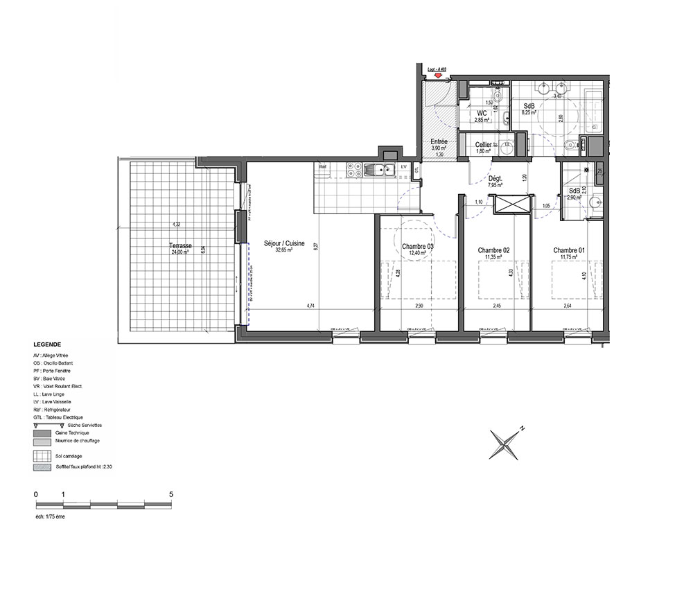
Appartement T4 n°A403 à Arras (62000)
Prix : nous consulter
La Belle Echappée à Arras
À noter
- Arras
- Livraison 4ème trimestre 2027
- Résidence principale/secondaire
- Investissement locatif
- Votre suivi personnalisé Peterson.fr
- Garanti prix direct promoteur
Prestations et équipements
À propos du programme
C’est lovée dans un écrin de verdure que cette nouvelle résidence viendra harmonieusement s’intégrer, offrant à ses futurs résidants l’équation parfaite entre ville et nature. Située à quelques minutes seulement du centre-ville de St Nicolas, cette adresse privilégiée proposera une réalisation aux lignes contemporaines et élégantes.
Avec ses 38 appartements spacieux, cette résidence à taille humaine offrira à chacun un espace de vie généreux, agrémenté d’un balcon ou d’une terrasse pour profiter pleinement du cadre naturel environnant .
Seront prochainement dévoiler des appartements du 2 au 4 pièces, baignés de lumière et aux prestations à la hauteur de ce cadre de vie unique.
Soyez les premiers à découvrir cette nouvelle réalisation.
Arras
En travaux

Accédez à notre page dédiée au programme "La Belle Echappée" pour tout savoir sur la résidence, ses prestations et son quartier.
