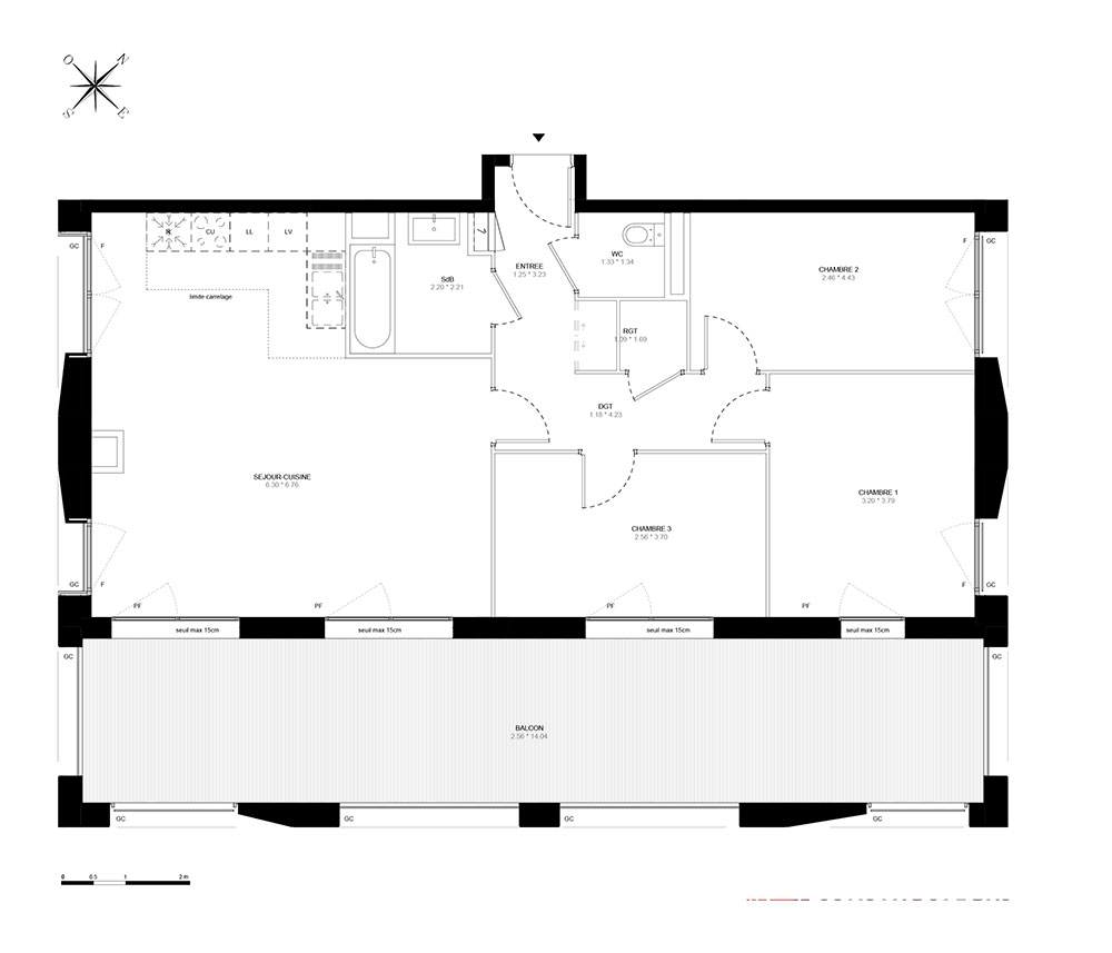
Appartement T4 n°B292 à Montévrain (77144)
Prix : nous consulter
Le Jardin d'Amsterdam à Montévrain
À noter
- Montévrain
- Livraison 2ème trimestre 2028
- Résidence principale/secondaire
- Investissement locatif
- Votre suivi personnalisé Peterson.fr
- Garanti prix direct promoteur
Prestations et équipements
À propos du programme
Une architecture contemporaine et élégante parfaitement intégrée à son environnement. La résidence se compose de plusieurs bâtiments aux lignes modernes et raffinées. Ils sont séparés par de larges ouvertures qui laissent entrevoir un jardin central paysager, véritable havre de verdure. Le choix des matériaux de qualité, tels que la terre cuite émaillée et l'enduit à la chaux, confère à l'ensemble un caractère harmonieux et durable.
Un cadre de vie pensé pour votre bien-être. Les appartements, du 2 au 5 pièces, bénéficient d'agencements optimisés et lumineux, offrant des espaces de vie confortables et fonctionnels. La plupart sont traversants, avec une double voire triple orientation pour un ensoleillement optimal. Chaque logement dispose d'un espace extérieur privatif : balcon ou terrasse, selon les configurations.
Montévrain
En travaux

Accédez à notre page dédiée au programme "Le Jardin d'Amsterdam" pour tout savoir sur la résidence, ses prestations et son quartier.



