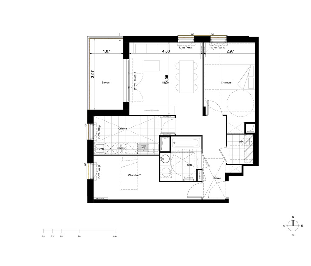
Appartement T3 n°1304 à Brunoy (91800)
Prix : nous consulter
Programme neuf n°39935 à Brunoy
À noter
- Brunoy
- Livraison 4ème trimestre 2027
- Résidence principale/secondaire
- Investissement locatif
- Votre suivi personnalisé Peterson.fr
- Garanti prix direct promoteur
Prestations et équipements
À propos du programme
Découvrez votre nouvelle résidence "Le Moulin de Cerçay", située à seulement 25 kilomètres de Paris, dans un environnement résidentiel calme et verdoyant, en bordure de l'Yerres.
Idéalement située, la ville de Brunoy dispose d'infrastructures essentielles au quotidien (établissements médicaux, équipements sportifs, théâtre, médiathèque et espaces culturels), ainsi que des établissements scolaires de la maternelle au lycée. Son accessibilité est assurée par la ligne D du RER, un réseau de bus dense, ainsi qu'un accès rapide à l'A6 et à la N104. Le Moulin de Cerçay dispose notamment d'un arrêt de bus à moins de 200 m, permettant de rejoindre la gare RER D de Brunoy en 10 minutes.
Répartis sur 2 bâtiments à taille humaine, la résidence dispose de 66 logements, du studio au 4 pièces, chacun offrant des aménagements optimisés qui maximisent la luminosité et la sensation d'espace. Tous les appartements disposent d'un espace extérieur privatif (balcon, terrasse ou jardin), offrant pour les derniers étages des vues dégagées sur la vallée de l'Yerres. Côté route de Brie, l'alignement de chênes remarquables vient renforcer la tranquillité des habitants et s'intègre parfaitement au jardin fleuri et arboré en coeur d'îlot qui vient agrémenter l'intimité et le confort du lieu.
La résidence propose une architecture moderne élégante et s'intègre harmonieusement avec la partie habitation pavillonnaire de la route de Brie, avec l'usage du bois et de teintes naturelles et des lignes en adéquation avec l'architecture environnante.
Prenez rendez-vous dès aujourd'hui pour découvrir tout ce que notre nouvelle résidence immobilière a à vous offrir. Ne manquez pas également l'opportunité de bénéficier d'une TVA réduite à 5,5 %, sous réserve de certaines conditions, ainsi que du nouveau prêt à taux zéro.
Brunoy
En travaux

Accédez à notre page dédiée au programme "Programme neuf n°39935" pour tout savoir sur la résidence, ses prestations et son quartier.
Autres biens disponibles
Investissez malin !
Ce programme peut bénéficier de nombreux avantages financiers adaptés à votre projet immobilier neuf :
Je recherche un bien pour...



