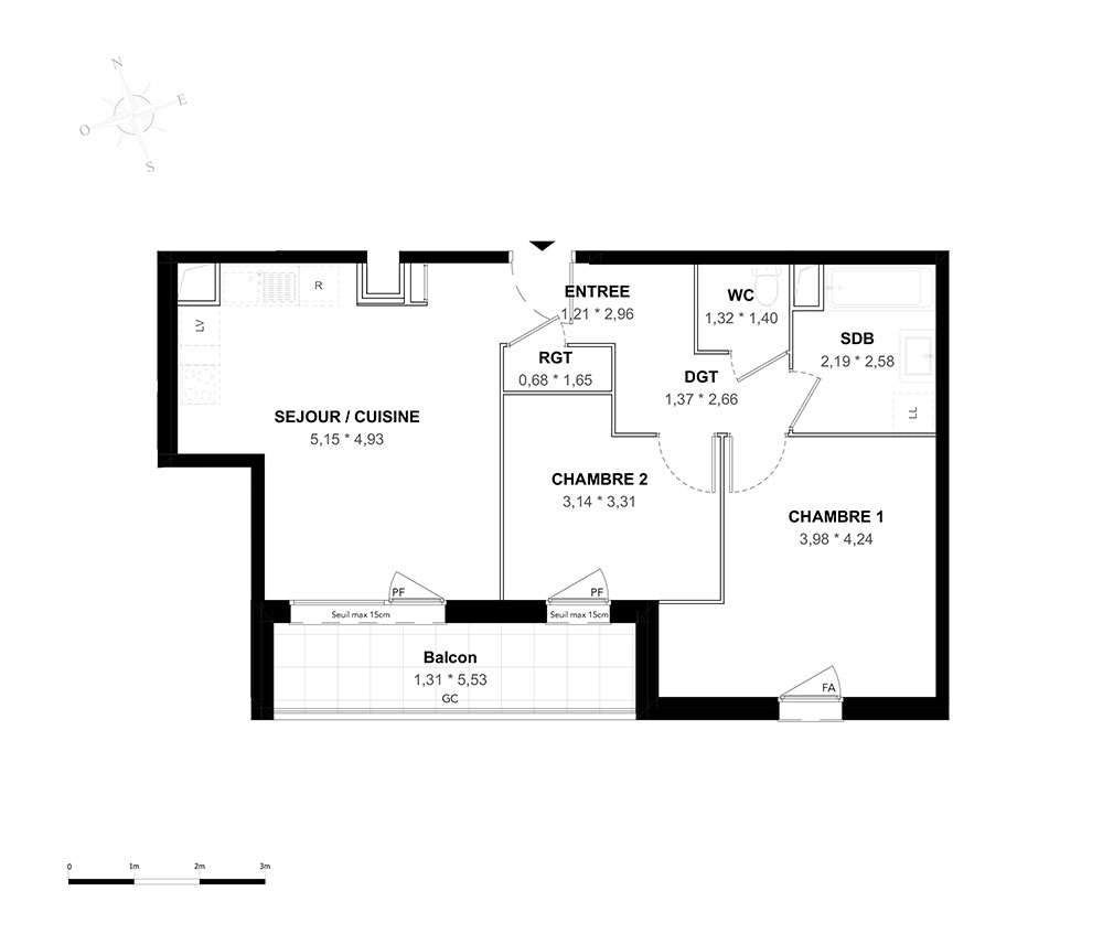
Appartement T3 n°A208 à Aubervilliers (93300)
Prix : nous consulter
Le Clos des Vertus à Aubervilliers
À noter
- Aubervilliers
- Livraison 3ème trimestre 2028
- Résidence principale/secondaire
- Investissement locatif
- Votre suivi personnalisé Peterson.fr
- Garanti prix direct promoteur
Prestations et équipements
À propos du programme
Située à seulement 1,5 kilomètres de Paris, cette résidence se distingue par son architecture contemporaine, élégante et parfaitement intégrée à son environnement. Elle propose des appartements neufs, allant du studio au 5 pièces, conçus pour répondre aux besoins de tous les modes de vie. Chaque logement est prolongé par un espace extérieur privatif balcon, loggia, terrasse ou jardin individuel offrant un véritable prolongement de l'espace intérieur.
La résidence adopte une écriture moderne et élégante, mêlant pierre claire, métal satiné et finitions raffinées. Répartie sur six niveaux, elle propose des façades animées de balcons, loggias et retraits en attique, créant une silhouette rythmée et aérienne. En coeur d'îlot, des jardins privatifs prolongent les logements dans une ambiance conviviale et verdoyante.
Les appartements, du studio au 5 pièces, offrent des volumes généreux, lumineux et bien agencés. Chaque logement bénéficie d'un espace extérieur jardin, balcon, loggia ou terrasse pensé comme une véritable pièce à vivre en plus. Certains grands appartements profitent d'une double orientation, pour une lumière naturelle abondante et une ventilation optimale toute l'année.
Aubervilliers
En travaux

Accédez à notre page dédiée au programme "Le Clos des Vertus" pour tout savoir sur la résidence, ses prestations et son quartier.
Autres biens disponibles
Investissez malin !
Ce programme peut bénéficier de nombreux avantages financiers adaptés à votre projet immobilier neuf :
Je recherche un bien pour...


