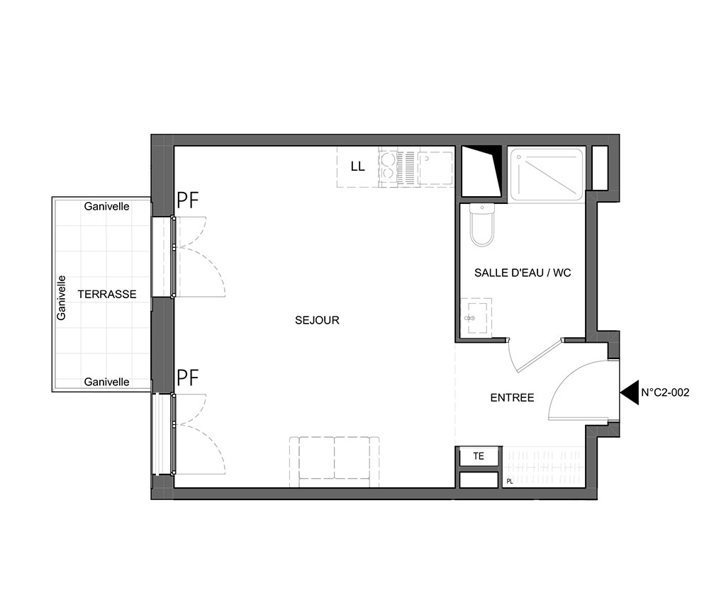
Appartement T1 n°C2002 à Villepinte (93420)
Prix : nous consulter
Villa Tassigny - Cages C1 - C2 -C3 à Villepinte
Appartement
T1 / F1 / 1 pièce
33,5 m² habitables
RDC
Sud-ouest
0 chambre
Terrasse 4 m²
À noter
- Villepinte
- Livraison 2ème trimestre 2027
- Résidence principale/secondaire
- Investissement locatif
- Votre suivi personnalisé Peterson.fr
- Garanti prix direct promoteur
Prestations et équipements
À propos du programme
.
Villepinte
En travaux
Livraison 2ème trimestre 2027

Accédez à notre page dédiée au programme "Villa Tassigny - Cages C1 - C2 -C3" pour tout savoir sur la résidence, ses prestations et son quartier.
Autres biens disponibles
Le programme neuf Villa Tassigny - Cages C1 - C2 -C3, situé dans la ville de Villepinte, est composé de 22 logements neufs de type appartement répartis en T1, T2, T2 bis, livrés au 2ème trimestre 2027 et destinés aux différents projets : résidence principale, résidence secondaire et investissement locatif. Ce programme neuf est éligible au dispositif Droit Commun pour habiter ou investir à Villepinte.
N° de lot
Surface
Commodités
Étage
Exposition
N° de lot
Surface
Commodités
Étage
Exposition
