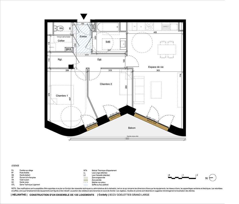
Appartement T3 n°B304 à Dunkerque (59140)
Prix : nous consulter
Hélianthe à Dunkerque
À noter
- Dunkerque
- Livraison 1er trimestre 2027
- Résidence principale/secondaire
- Investissement locatif
- Votre suivi personnalisé Peterson.fr
- Garanti prix direct promoteur
Prestations et équipements
À propos du programme
Hélianthe, une résidence répondant aux nouvelles normes environnementales, se compose de 129 logements du Studio au 5 pièces en duplex. Les logements de la résidence profitent d'un ensoleillement optimal grâce à de larges ouvertures sur l'extérieur, créant ainsi une atmosphère chaleureuse et apaisante. Pour profiter de la beauté et de la sérénité de l'environnement, chaque appartement est doté d'un balcon, d'une terrasse plantée ou d'un jardin privatif, permettant ainsi de profiter, pour la plupart, de la vue exceptionnelle sur la mer ou sur le jardin qui s'étend en son coeur.
Hélianthe est bien plus qu'une simple résidence, c'est un véritable havre de paix, niché dans un cadre verdoyant et paisible. Les 5 bâtiments sont intelligemment disposés sur 2 îlots offrant à ses habitants intimité et tranquillité, ainsi que de véritables failles végétales et de généreuses allées piétonnes.
Dunkerque
En travaux

Accédez à notre page dédiée au programme "Hélianthe" pour tout savoir sur la résidence, ses prestations et son quartier.






