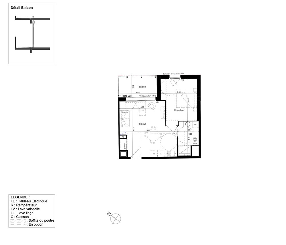
Appartement T2 n°1301 à Sotteville-lès-Rouen (76300)
Prix : nous consulter
Louise Sainte-martine à Sotteville-lès-Rouen
À noter
- Sotteville-lès-Rouen
- Livraison 2ème trimestre 2028
- Résidence principale/secondaire
- Investissement locatif
- Votre suivi personnalisé Peterson.fr
- Garanti prix direct promoteur
Prestations et équipements
À propos du programme
Soyez les premiers à choisir votre futur logement dans un cadre de vie privilégié, à deux pas de Rouen !Située dans un quartier résidentiel, à seulement quelques minutes du centre de Rouen, cette nouvelle résidence à taille humaine propose 24 appartements neufs, du 2 au 4 pièces, conçus pour offrir un cadre de vie confortable, moderne et serein. Chaque logement bénéficie d'un agencement optimisé, de prestations de qualité et d'un espace extérieur privatif (balcon, terrasse et terrasse en attique), idéal pour profiter pleinement de l'environnement verdoyant. Elle bénéficie d'un emplacement stratégique : transports en commun à proximité immédiate, commerces, écoles, services et espaces verts accessibles à pied. Le Jardin des Plantes et les nombreuses pistes cyclables renforcent l'attrait d'un quartier à la fois dynamique et paisible. Profitez de la TVA réduite à 5,5 %, une opportunité rare pour devenir propriétaire dans un quartier en plein renouveau. Contactez nous dès aujourd'hui pour plus d'informations !
Sotteville-lès-Rouen
En travaux

Accédez à notre page dédiée au programme "Louise Sainte-martine" pour tout savoir sur la résidence, ses prestations et son quartier.

