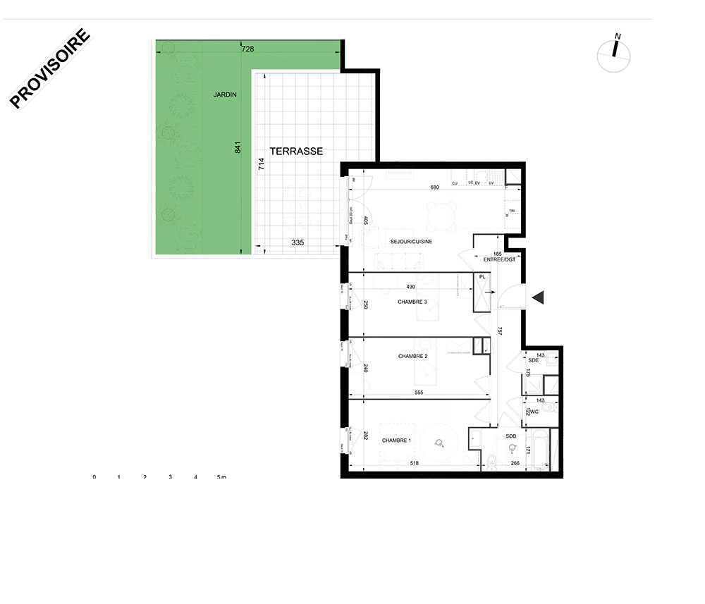
Appartement T4 n°A505 à Savigny-le-Temple (77176)
Prix : nous consulter
Nouvel Angle à Savigny-le-Temple
À noter
- Savigny-le-Temple
- Livraison 4ème trimestre 2027
- Résidence principale/secondaire
- Investissement locatif
- Votre suivi personnalisé Peterson.fr
- Garanti prix direct promoteur
Prestations et équipements
À propos du programme
Découvrez notre nouvelle résidence située à l'angle de l'avenue Pierre Mendès France et de l'avenue Jean Moulin. Laissez-vous séduire par son architecture contemporaine et son large choix d'appartements, du studio au 4 pièces prolongés pour la plupart d'un balcon ou d'une terrasse. Profitez d'un emplacement idéal, à seulement 500 mètres à pied des commerces avec le marché du centre-ville, des écoles mais aussi de la gare RER D, vous permettant de rejoindre Paris-Gare de Lyon en 43 minutes. Pour votre confort et votre sécurité, la résidence sera certifiée NF HABITAT HQE et répondra à la réglementation RE 2020.
Savigny-le-Temple
En travaux

Accédez à notre page dédiée au programme "Nouvel Angle" pour tout savoir sur la résidence, ses prestations et son quartier.
Autres biens disponibles
Investissez malin !
Ce programme peut bénéficier de nombreux avantages financiers adaptés à votre projet immobilier neuf :
Je recherche un bien pour...


