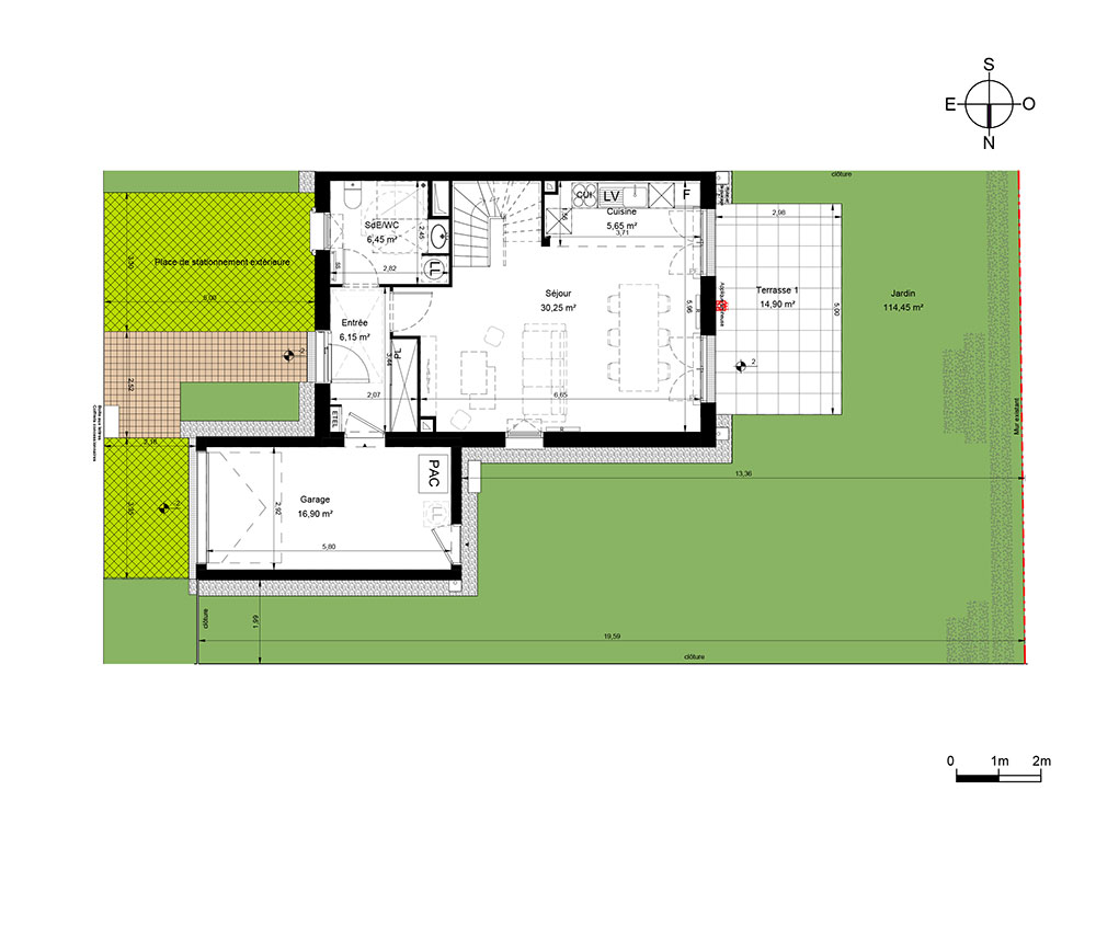
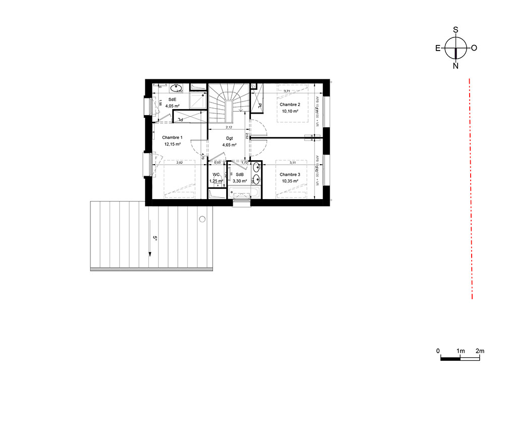
Maison T4 n°M18 à Rambouillet (78120)
Prix : nous consulter
La Galopée à Rambouillet
À noter
- Rambouillet
- Livraison 4ème trimestre 2027
- Résidence principale/secondaire
- Investissement locatif
- Votre suivi personnalisé Peterson.fr
- Garanti prix direct promoteur
Prestations et équipements
À propos du programme
VINCI Immobilier et FAIR’ Promotion réalisent LA GALOPEE une nouvelle résidence à l’architecture contemporaine avec des appartements du 2 pièces au 5 pièces prolongés par un balcon ou une terrasse. Vous profiterez également d’une halle commerçante et de nombreux espaces verts paysagers et qualitatifs. Les lignes de bus situées à seulement 250 mètres de la résidence vous mèneront en 5 minutes à la Gare de Rambouillet (Transilien N). Vous pourrez ainsi rejoindre Paris Montparnasse en 33 minutes. Votre quotidien sera également facilité par la proximité immédiate du centre commercial de la Giroderie, des équipements scolaires, publics et sportifs. Ne manquez pas cette opportunité unique de vivre dans un cadre exceptionnel !
Rambouillet
En travaux

Accédez à notre page dédiée au programme "La Galopée" pour tout savoir sur la résidence, ses prestations et son quartier.






