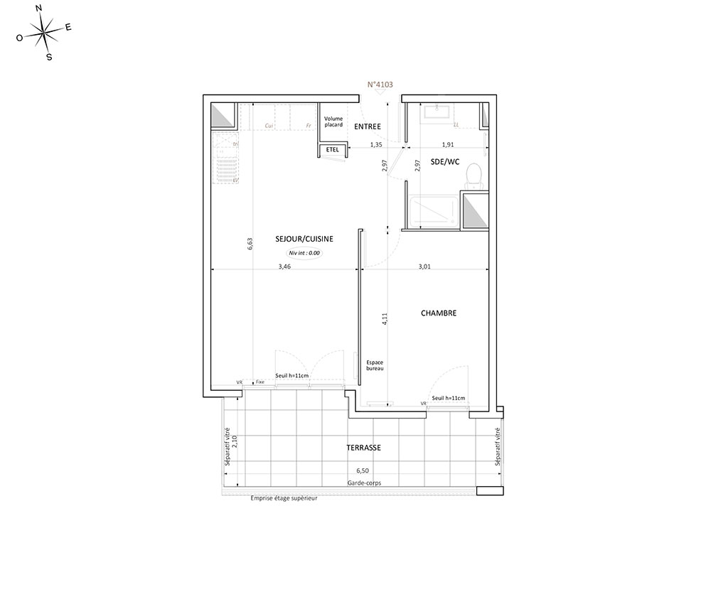
Appartement T2 n°4103 à Cagnes-sur-Mer (06800)
Prix : nous consulter
Les Terrasses D 'ella à Cagnes-sur-Mer
À noter
- Cagnes-sur-Mer
- Livraison 3ème trimestre 2028
- Résidence principale/secondaire
- Investissement locatif
- Votre suivi personnalisé Peterson.fr
- Garanti prix direct promoteur
Prestations et équipements
À propos du programme
À Cagnes-sur-Mer, découvrez une résidence d'exception nichée au pied des collines arborées. À quelques pas du centre historique et à moins de 2 km* du bord de mer et de tous les atouts culturels et naturels de la région, profitez d'appartements du 2 au 3 pièces aux orientations optimisées, tous prolongés par des extérieurs privatifs. Architecture contemporaine aux lignes élégantes, jardins partagés et prestations soignées : profitez d'un véritable cocon de bien-être rare en cœur de ville, certifié RE2020. Les acquéreurs éligibles profiteront du dispositif exclusif Cogedim Access pour devenir propriétaire avec un apport réduit, et des mensualités équivalentes à celles d'un loyer.
Cagnes-sur-Mer
En travaux

Accédez à notre page dédiée au programme "Les Terrasses D 'ella" pour tout savoir sur la résidence, ses prestations et son quartier.
Autres biens disponibles
Aperçu du programme neuf « Les Terrasses D 'ella »
Le programme immobilier neuf « Les Terrasses D 'ella » se situe à Cagnes-sur-Mer. Ce projet immobilier propose 12 appartements, tous neufs, et 7 d'entre eux sont encore sur le marché. De type T2 et T3, ils répondront en même temps aux besoins d'une recherche en résidence principale ou secondaire ainsi qu'à ceux d'un investissement locatif. Au deuxième trimestre 2028, les logements seront mis à disposition et vous pouvez également noter qu'ils sont éligibles aux dispositifs LMNP (loueur en meublé non professionnel) hors bail commercial et de droit commun.


