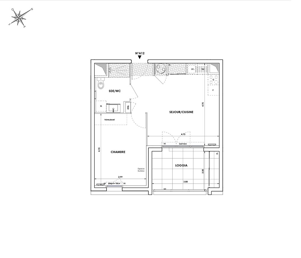
Appartement T2 n°A12 à La Ciotat (13600)
Prix : nous consulter
BaÏa Azur à La Ciotat
À noter
- La Ciotat
- Livraison 3ème trimestre 2027
- Résidence principale/secondaire
- Investissement locatif
- Votre suivi personnalisé Peterson.fr
- Garanti prix direct promoteur
Prestations et équipements
À propos du programme
Nichée dans un quartier paisible de La Ciotat, à moins de 10 minutes à vélo des plages et du centre historique, cette résidence neuve allie confort contemporain et élégance méditerranéenne. Son jardin luxuriant, ses proportions intimistes et ses toitures en tuiles patinées créent une atmosphère authentique et raffinée. Du 2 au 4 pièces, chaque appartement s'ouvre sur un généreux espace extérieur - balcon, jardin privatif ou majestueuse terrasse en attique. Les agencements fluides et les orientations soigneusement étudiées créent des intérieurs lumineux, aussi fonctionnels qu’harmonieux. Profitez d’un quotidien privilégié entre azur et collines, à deux pas des écoles et commerces, dans cette cité balnéaire au patrimoine exceptionnel.
La Ciotat
En travaux

Accédez à notre page dédiée au programme "BaÏa Azur" pour tout savoir sur la résidence, ses prestations et son quartier.