Appartement T3 n°B504 à Saint-Herblain (44800)
Prix : nous consulter
Programme neuf n°39868 à Saint-Herblain
Appartement
T3 / F3 / 3 pièces
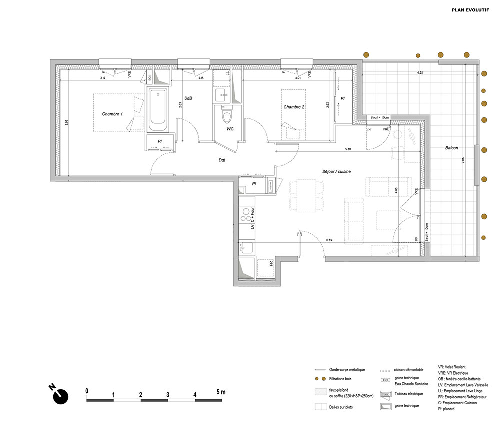
64,09 m² habitables
5ème étage
Sud-est
2 chambres
Station. 1
Balcon 16 m²
À noter
- Saint-Herblain
- Livraison 4ème trimestre 2027
- Résidence principale/secondaire
- Investissement locatif
- Votre suivi personnalisé Peterson.fr
- Garanti prix direct promoteur
Prestations et équipements
À propos du programme
.
Saint-Herblain
En travaux
Livraison 4ème trimestre 2027

Accédez à notre page dédiée au programme "Programme neuf n°39868" pour tout savoir sur la résidence, ses prestations et son quartier.
Autres biens disponibles
Le programme neuf Floréli, situé dans la ville de Saint-Herblain, est composé de 49 logements neufs de type appartement répartis en T2, T3, T4, T5, livrés au 4ème trimestre 2027 et destinés aux différents projets : résidence principale, résidence secondaire et investissement locatif. Ce programme neuf est éligible au dispositif Droit Commun pour habiter ou investir à Saint-Herblain.
N° de lot
Surface
Commodités
Étage
Exposition
N° de lot
Surface
Commodités
Étage
Exposition
N° de lot
Surface
Commodités
Étage
Exposition
N° de lot
Surface
Commodités
Étage
Exposition
Lot n°B1001B1001
98 m²
Parking, Terrasse / Balcon
Étage 10
Exposition : Sud-ouestSud-ouest


