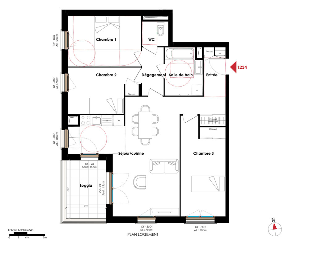
Appartement T4 n°1234 à Vaulx-en-Velin (69120)
Prix : nous consulter
Résidence Soline à Vaulx-en-Velin
À noter
- Vaulx-en-Velin
- Livraison 4ème trimestre 2027
- Résidence principale/secondaire
- Investissement locatif
- Votre suivi personnalisé Peterson.fr
- Garanti prix direct promoteur
Prestations et équipements
À propos du programme
Idéalement située proche du Carré de Soie, la nouvelle résidence SOLINE signée Nexity vous propose des appartements modernes et lumineux, du 2 au 5 pièces, conçus pour votre confort. Profitez d'un cadre de vie exceptionnel avec de beaux espaces verts paysagers, véritable havre de paix en ville. Chaque logement dispose d'une place de stationnement privative, alliant praticité et sérénité au quotidien. A deux pas des commerces et des espaces de loisirs, cette adresse est parfaite pour investir ou vivre en famille. La ligne de métro A se situe à quelques minutes à pied, ainsi que le tramway T9 qui desservira directement la résidence en 2026. Ne manquez pas cette opportunité unique de conjuguer bien-être et qualité de vie dans un environnement dynamique et agréable !
Vaulx-en-Velin
En travaux

Accédez à notre page dédiée au programme "Résidence Soline" pour tout savoir sur la résidence, ses prestations et son quartier.