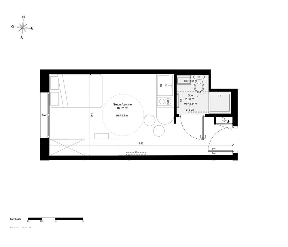
Appartement T1 n°606 à Bordeaux (33000)
Prix : nous consulter
Bordo Alto à Bordeaux
À noter
- Bordeaux
- Livraison 4ème trimestre 2028
- Investissement locatif
- Votre suivi personnalisé Peterson.fr
- Garanti prix direct promoteur
Ce programme propose des biens éligibles aux dispositifs de défiscalisation suivant :
À propos du programme
À Bordeaux, investissez dans une résidence étudiante gérée, au cœur d’un quartier en pleine transformation. BordoAlto vous propose 239 studios meublés, avec une rentabilité attractive. Un placement LMNP sécurisé, sans souci de gestion, dans une métropole étudiante dynamique où la demande locative dépasse largement l’offre.
Situé sur la rive droite de Bordeaux, le quartier Le Belvédère incarne le renouveau urbain de la ville. À deux pas de la gare Saint-Jean, des quais de Garonne et des pistes cyclables, il offre un cadre de vie équilibré entre nature et ville. Connecté au centre historique par le pont Saint-Jean et le tramway ligne A, il bénéficie d’une excellente accessibilité.

Accédez à notre page dédiée au programme "Bordo Alto" pour tout savoir sur la résidence, ses prestations et son quartier.
