Bordo AltoBordo Alto
Bordo Alto
Bordo Alto

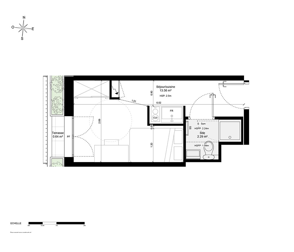
Appartement T1 n°903 à Bordeaux (33000)

Prix : nous consulter

Bordeaux (33000)

Bordo Alto à Bordeaux

LMNP neuf
Appartement
T1 / F1 / 1 pièce
15,87 m² habitables
9ème étage
Ouest
0 chambre

À noter

  • Bordeaux
  • Livraison 3ème trimestre 2028
  • Investissement locatif
  • Votre suivi personnalisé Peterson.fr
  • Garanti prix direct promoteur
Dispositifs d'investissement
Bon plan pour acheter malin !
Ce programme propose des biens éligibles aux dispositifs de défiscalisation suivant :
LMNP neuf

À propos du programme

À Bordeaux, investissez dans une résidence étudiante gérée, au cœur d’un quartier en pleine transformation. BordoAlto vous propose 239 studios meublés, avec une rentabilité attractive. Un placement LMNP sécurisé, sans souci de gestion, dans une métropole étudiante dynamique où la demande locative dépasse largement l’offre.

Situé sur la rive droite de Bordeaux, le quartier Le Belvédère incarne le renouveau urbain de la ville. À deux pas de la gare Saint-Jean, des quais de Garonne et des pistes cyclables, il offre un cadre de vie équilibré entre nature et ville. Connecté au centre historique par le pont Saint-Jean et le tramway ligne A, il bénéficie d’une excellente accessibilité.

En travaux

Livraison 3ème trimestre 2028

Avantages fiscaux

LMNP neuf

Accédez à notre page dédiée au programme "Bordo Alto" pour tout savoir sur la résidence, ses prestations et son quartier.

Autres biens disponibles

Le programme neuf Bordo Alto, situé dans la ville de Bordeaux, est composé de 127 logements neufs de type appartement répartis en T1, livrés du 3ème trimestre 2028 au 3ème trimestre 2028 et destinés au projet : investissement locatif. Ce programme neuf est éligible au dispositif LMNP pour investir à Bordeaux. Le programme immobilier Bordo Alto possède le label énergétique RE 2020.
Appartement 1 pièce
113 biens disponibles
N° de lot
Surface
Commodités
Étage
Exposition
Lot n°101101
18 m²
Étage 1
Exposition : OuestOuest
Lot n°103103
17 m²
Étage 1
Exposition : OuestOuest
Lot n°105105
18 m²
Étage 1
Exposition : OuestOuest
Lot n°107107
18 m²
Étage 1
Exposition : OuestOuest
Lot n°109109
18 m²
Étage 1
Exposition : EstEst
Lot n°111111
18 m²
Étage 1
Exposition : EstEst
Lot n°113113
19 m²
Étage 1
Exposition : EstEst
Lot n°115115
26 m²
Étage 1
Exposition : Sud-estSud-est
Lot n°117117
18 m²
Étage 1
Exposition : Sud-estSud-est
Lot n°123123
18 m²
Étage 1
Exposition : Nord-ouestNord-ouest
Lot n°125125
18 m²
Étage 1
Exposition : Nord-ouestNord-ouest
Lot n°127127
18 m²
Étage 1
Exposition : Nord-ouestNord-ouest
Lot n°202202
18 m²
Étage 2
Exposition : OuestOuest
Lot n°204204
17 m²
Étage 2
Exposition : OuestOuest
Lot n°206206
18 m²
Étage 2
Exposition : OuestOuest
Lot n°208208
17 m²
Étage 2
Exposition : EstEst
Lot n°212212
18 m²
Étage 2
Exposition : EstEst
Lot n°214214
18 m²
Étage 2
Exposition : EstEst
Lot n°216216
19 m²
Étage 2
Exposition : Sud-estSud-est
Lot n°218218
19 m²
Étage 2
Exposition : Sud-estSud-est
Lot n°220220
19 m²
Étage 2
Exposition : Sud-estSud-est
Lot n°222222
18 m²
Étage 2
Exposition : Nord-ouestNord-ouest
Lot n°224224
18 m²
Étage 2
Exposition : Nord-ouestNord-ouest
Lot n°226226
18 m²
Étage 2
Exposition : Nord-ouestNord-ouest
Lot n°301301
18 m²
Étage 3
Exposition : OuestOuest
Lot n°303303
17 m²
Étage 3
Exposition : OuestOuest
Lot n°305305
18 m²
Étage 3
Exposition : OuestOuest
Lot n°307307
18 m²
Étage 3
Exposition : OuestOuest
Lot n°309309
18 m²
Étage 3
Exposition : EstEst
Lot n°311311
18 m²
Étage 3
Exposition : EstEst
Lot n°313313
19 m²
Étage 3
Exposition : EstEst
Lot n°315315
26 m²
Étage 3
Exposition : Sud-estSud-est
Lot n°317317
18 m²
Étage 3
Exposition : Sud-estSud-est
Lot n°321321
17 m²
Étage 3
Exposition : Sud-estSud-est
Lot n°323323
18 m²
Étage 3
Exposition : Nord-ouestNord-ouest
Lot n°325325
18 m²
Étage 3
Exposition : Nord-ouestNord-ouest
Lot n°327327
18 m²
Étage 3
Exposition : Nord-ouestNord-ouest
Lot n°402402
18 m²
Étage 4
Exposition : OuestOuest
Lot n°404404
17 m²
Étage 4
Exposition : OuestOuest
Lot n°406406
18 m²
Étage 4
Exposition : OuestOuest
Lot n°408408
17 m²
Étage 4
Exposition : EstEst
Lot n°412412
18 m²
Étage 4
Exposition : EstEst
Lot n°414414
18 m²
Étage 4
Exposition : EstEst
Lot n°416416
19 m²
Étage 4
Exposition : Sud-estSud-est
Lot n°418418
19 m²
Étage 4
Exposition : Sud-estSud-est
Lot n°420420
19 m²
Étage 4
Exposition : Sud-estSud-est
Lot n°422422
18 m²
Étage 4
Exposition : Nord-ouestNord-ouest
Lot n°424424
18 m²
Étage 4
Exposition : Nord-ouestNord-ouest
Lot n°426426
18 m²
Étage 4
Exposition : Nord-ouestNord-ouest
Lot n°501501
18 m²
Étage 5
Exposition : OuestOuest
Lot n°503503
17 m²
Étage 5
Exposition : OuestOuest
Lot n°505505
18 m²
Étage 5
Exposition : OuestOuest
Lot n°507507
18 m²
Étage 5
Exposition : OuestOuest
Lot n°509509
18 m²
Étage 5
Exposition : EstEst
Lot n°511511
18 m²
Étage 5
Exposition : EstEst
Lot n°513513
19 m²
Étage 5
Exposition : EstEst
Lot n°515515
26 m²
Étage 5
Exposition : Sud-estSud-est
Lot n°517517
18 m²
Étage 5
Exposition : Sud-estSud-est
Lot n°521521
17 m²
Étage 5
Exposition : Sud-estSud-est
Lot n°523523
18 m²
Étage 5
Exposition : Nord-ouestNord-ouest
Lot n°525525
18 m²
Étage 5
Exposition : Nord-ouestNord-ouest
Lot n°527527
18 m²
Étage 5
Exposition : Nord-ouestNord-ouest
Lot n°602602
18 m²
Étage 6
Exposition : OuestOuest
Lot n°604604
17 m²
Étage 6
Exposition : OuestOuest
Lot n°606606
18 m²
Étage 6
Exposition : OuestOuest
Lot n°608608
17 m²
Étage 6
Exposition : EstEst
Lot n°612612
18 m²
Étage 6
Exposition : EstEst
Lot n°614614
18 m²
Étage 6
Exposition : EstEst
Lot n°616616
19 m²
Étage 6
Exposition : Sud-estSud-est
Lot n°618618
19 m²
Étage 6
Exposition : Sud-estSud-est
Lot n°620620
19 m²
Étage 6
Exposition : Sud-estSud-est
Lot n°622622
18 m²
Étage 6
Exposition : Nord-ouestNord-ouest
Lot n°624624
18 m²
Étage 6
Exposition : Nord-ouestNord-ouest
Lot n°626626
18 m²
Étage 6
Exposition : Nord-ouestNord-ouest
Lot n°701701
18 m²
Étage 7
Exposition : OuestOuest
Lot n°703703
17 m²
Étage 7
Exposition : OuestOuest
Lot n°705705
18 m²
Étage 7
Exposition : OuestOuest
Lot n°707707
18 m²
Étage 7
Exposition : OuestOuest
Lot n°709709
18 m²
Étage 7
Exposition : EstEst
Lot n°711711
18 m²
Étage 7
Exposition : EstEst
Lot n°713713
19 m²
Étage 7
Exposition : EstEst
Lot n°715715
26 m²
Étage 7
Exposition : Sud-estSud-est
Lot n°717717
18 m²
Étage 7
Exposition : Sud-estSud-est
Lot n°721721
17 m²
Étage 7
Exposition : Sud-estSud-est
Lot n°723723
18 m²
Étage 7
Exposition : Nord-ouestNord-ouest
Lot n°725725
18 m²
Étage 7
Exposition : Nord-ouestNord-ouest
Lot n°727727
18 m²
Étage 7
Exposition : Nord-ouestNord-ouest
Lot n°802802
18 m²
Étage 8
Exposition : OuestOuest
Lot n°804804
17 m²
Étage 8
Exposition : OuestOuest
Lot n°806806
18 m²
Étage 8
Exposition : OuestOuest
Lot n°808808
17 m²
Étage 8
Exposition : EstEst
Lot n°812812
18 m²
Étage 8
Exposition : EstEst
Lot n°814814
18 m²
Étage 8
Exposition : EstEst
Lot n°816816
19 m²
Étage 8
Exposition : Sud-estSud-est
Lot n°818818
19 m²
Étage 8
Exposition : Sud-estSud-est
Lot n°820820
19 m²
Étage 8
Exposition : Sud-estSud-est
Lot n°822822
18 m²
Étage 8
Exposition : Nord-ouestNord-ouest
Lot n°824824
18 m²
Étage 8
Exposition : Nord-ouestNord-ouest
Lot n°826826
18 m²
Étage 8
Exposition : Nord-ouestNord-ouest
Lot n°901901
19 m²
Étage 9
Exposition : OuestOuest
Lot n°911911
17 m²
Étage 9
Exposition : EstEst
Lot n°913913
18 m²
Étage 9
Exposition : Sud-estSud-est
Lot n°915915
17 m²
Étage 9
Exposition : Sud-estSud-est
Lot n°917917
27 m²
Étage 9
Exposition : Sud-estSud-est
Lot n°921921
17 m²
Étage 9
Exposition : Nord-ouestNord-ouest
Lot n°119PMR119PMR
23 m²
Étage 1
Exposition : Sud-estSud-est
Lot n°210PMR210PMR
25 m²
Étage 2
Exposition : EstEst
Lot n°319PMR319PMR
24 m²
Étage 3
Exposition : Sud-estSud-est
Lot n°410PMR410PMR
25 m²
Étage 4
Exposition : EstEst
Lot n°519PMR519PMR
24 m²
Étage 5
Exposition : Sud-estSud-est
Lot n°610PMR610PMR
25 m²
Étage 6
Exposition : EstEst
Lot n°719PMR719PMR
24 m²
Étage 7
Exposition : Sud-estSud-est
Lot n°810PMR810PMR
25 m²
Étage 8
Exposition : EstEst