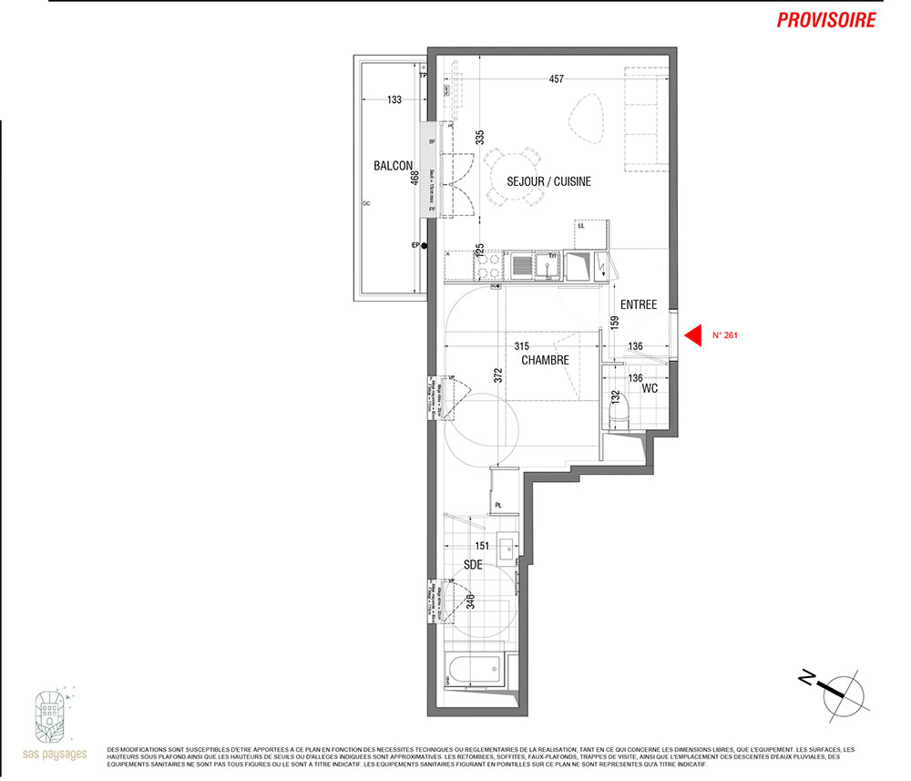
Appartement T2 n°D261 à Dugny (93440)
Prix : nous consulter
Ora à Dugny
À noter
- Dugny
- Livraison 1er trimestre 2028
- Résidence principale/secondaire
- Investissement locatif
- Votre suivi personnalisé Peterson.fr
- Garanti prix direct promoteur
Prestations et équipements
À propos du programme
L'opportunité de devenir propriétaire proche de Paris !
À Dugny-Le Bourget, à seulement 12 km de Paris, découvrez ORA, un nouvel ensemble immobilier situé au cœur d’un quartier verdoyant et apaisé, proche du Village des Médias et du futur métro Grand Paris Express.
Bénéficiez d’un cadre de vie unique, connecté et pratique : à 5 min de la future ligne 17 du Grand Paris Express (Le Bourget), accès rapide à l’A1 et l’A86, commerces, écoles et services à proximité immédiate et au pied d’un parc de 417 ha, ORA s’inscrit dans la continuité du quartier des Jeux Olympiques, déjà salué pour sa réussite urbaine et paysagère.
Devenez propriétaire de votre appartement neuf, du studio au 5 pièces avec jardin, balcon, loggia ou terrasse et bénéficiez du nouveau Prêt à Taux 0% (PTZ) pour compléter votre financement !
Dugny
En travaux

Accédez à notre page dédiée au programme "Ora" pour tout savoir sur la résidence, ses prestations et son quartier.

