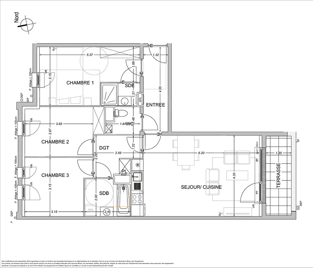
Appartement T4 n°B15 à Gravelines (59820)
Prix : nous consulter
Skala à Gravelines
À noter
- Gravelines
- Livraison 2ème trimestre 2027
- Résidence principale/secondaire
- Investissement locatif
- Votre suivi personnalisé Peterson.fr
- Garanti prix direct promoteur
Prestations et équipements
À propos du programme
Découvrez SKALA, un programme immobilier neuf situé à Gravelines, à seulement quelques minutes du centre-ville. Cette résidence à taille humaine propose 41 appartements neufs répartis sur 2 bâtiments.
Vous êtes primo-accédant ? Bénéficiez du Prêt à Taux Zéro (PTZ) pour financer une partie de votre achat immobilier neuf sans intérêts (sous conditions de ressources et d’éligibilité).
La résidence SKALA propose une large gamme de logements neufs, du 2 au 4 pièces, tous prolongés par un balcon, une loggia ou un jardin privatif pour un confort de vie optimal.
En pied d’immeuble, profitez de services pratiques : une crèche et un cabinet dentaire viendront compléter l’offre résidentielle.
Vous souhaitez investir à Gravelines ? SKALA bénéficie d’un emplacement stratégique, proche des grands bassins d’emploi, notamment la GigaFactory Verkor (à seulement 8 minutes en voiture). Une belle opportunité pour un investissement locatif en LMNP (Loueur Meublé Non Professionnel).
Gravelines
En travaux

Accédez à notre page dédiée au programme "Skala" pour tout savoir sur la résidence, ses prestations et son quartier.