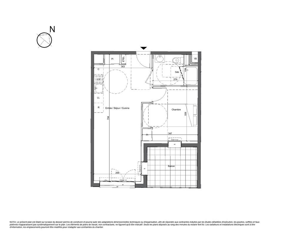
Appartement T2 n°1303 à Bourges (18000)
Prix : nous consulter
Le Clos d'Auron à Bourges
À noter
- Bourges
- Livraison 1er trimestre 2028
- Résidence principale/secondaire
- Investissement locatif
- Votre suivi personnalisé Peterson.fr
- Garanti prix direct promoteur
Prestations et équipements
À propos du programme
Découvrez une nouvelle résidence Le Clos d'Auron à Bourges pensée pour vous offrir bien plus qu'un logement : un véritable cadre de vie. Du studio cosy au confortable 3 pièces, chaque appartement a été conçu pour allier confort, économies d'énergie et qualité de vie. Ascenseur, local vélos, parkings privatifs Tout est là pour simplifier votre quotidien.
Étudiants, jeunes actifs, seniors : chacun y trouve sa place. Et pour les plus âgés, un pack 'confort' en option permet d'adapter le logement pour un maintien à domicile en toute sérénité.
Vivre ici, c'est choisir la tranquillité d'un quartier agréable, tout en restant proche des commodités et du coeur de Bourges. C'est aussi faire le choix d'un habitat durable, conforme aux dernières normes de construction.
Acheter du neuf, c'est bénéficier de nombreux avantages : un logement personnalisable, des garanties constructeur qui vous protègent pendant plusieurs années, des frais de notaire réduits, et pour votre 1er achat, la possibilité de financer une partie de votre bien grâce au prêt à taux zéro !
Bourges
En travaux

Accédez à notre page dédiée au programme "Le Clos d'Auron" pour tout savoir sur la résidence, ses prestations et son quartier.



