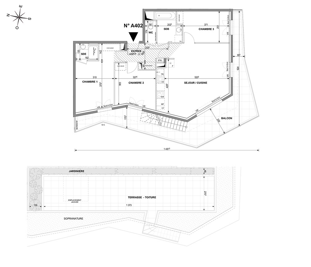
Appartement T4 n°A402 à Nice (06000)
Prix : nous consulter
Serenity View à Nice
À noter
- Nice
- Livraison 3ème trimestre 2028
- Résidence principale/secondaire
- Investissement locatif
- Votre suivi personnalisé Peterson.fr
- Garanti prix direct promoteur
Prestations et équipements
À propos du programme
Découvrez une adresse confidentielle au cœur de Sainte-Marguerite, où chaque appartement révèle des vues imprenables sur les reliefs varois et, pour certains, de superbes percées vers la mer. Savourez au quotidien un art de vivre serein, sublimé par un luxe tout en finesse.
Du 2 au 4 pièces, cette résidence intimiste met l’accent sur les espaces extérieurs, généreux et préservés : terrasses panoramiques, jardins privatifs et solariums exclusifs couronnant les penthouses du dernier niveau. Au centre de l'ensemble, une piscine privée se niche dans un écrin de verdure, créant une oasis de détente suspendue entre ciel et nature.
Une opportunité rare de devenir propriétaire ou d'investir dans la perle de la Côte d’Azur.
Nice
En travaux

Accédez à notre page dédiée au programme "Serenity View" pour tout savoir sur la résidence, ses prestations et son quartier.

