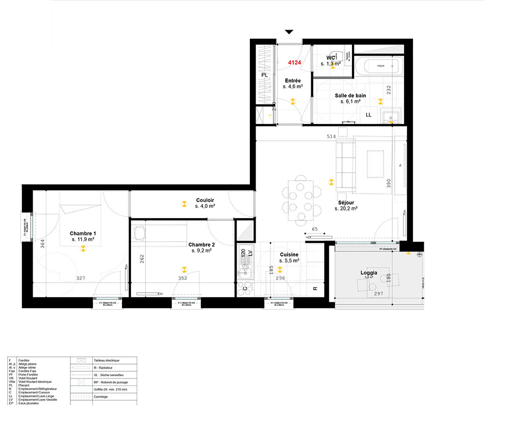
Appartement T3 n°4124 à Huningue (68330)
Prix : nous consulter
Jardin Des Eaux Vives à Huningue
À noter
- Huningue
- Livraison 1er trimestre 2028
- Résidence principale/secondaire
- Investissement locatif
- Votre suivi personnalisé Peterson.fr
- Garanti prix direct promoteur
Prestations et équipements
À propos du programme
Venez découvrir nos offres exceptionnelles au 15 quai du Maroc à Huningue !Nexity Héritage vous propose une nouvelle résidence à la frontière Suisse et Allemande au coeur de la ville d'Huningue. A 15 minutes de l'aéroport de Bâle-Mulhouse et des gares SNCF. A la lisière du Parc des Eaux Vives, ce projet vous propose des appartements de qualité du studio au 5 pièces avec de belles surfaces extérieures pour tous. Permis de construire obtenu et purgé Une adresse idéale pour habiter ou investir, dans un cadre dynamique et tourné vers l'avenir. N'hésitez pas à nous contacter pour découvrir notre futur projet.
Huningue
En travaux

Accédez à notre page dédiée au programme "Jardin Des Eaux Vives" pour tout savoir sur la résidence, ses prestations et son quartier.