Bordeaux BelvedereBordeaux BelvedereBordeaux BelvedereBordeaux BelvedereBordeaux Belvedere
Bordeaux Belvedere
Bordeaux Belvedere
Bordeaux Belvedere
Bordeaux Belvedere
Bordeaux Belvedere

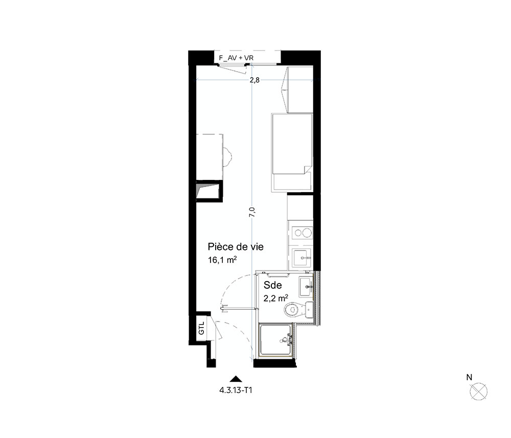
Appartement T1 n°4313 à Bordeaux (33000)

Prix : nous consulter

Bordeaux (33000)

Bordeaux Belvedere à Bordeaux

Nue-Propriété
Appartement
T1 / F1 / 1 pièce
18,3 m² habitables
3ème étage
Nord-est
0 chambre

À noter

  • Bordeaux
  • Livraison 3ème trimestre 2028
  • Investissement locatif
  • Votre suivi personnalisé Peterson.fr
  • Garanti prix direct promoteur
Dispositifs d'investissement
Bon plan pour acheter malin !
Ce programme propose des biens éligibles aux dispositifs de défiscalisation suivant :
Démembrement (Nue-Propriété)

À propos du programme

Au coeur du quartier Deschamps Belvédère, à quelques pas du Pont de Pierre, Nexity en copromotion avec Altarea Cogedim présente BordoTempo sa nouvelle résidence. Inspirée de l'architecture bordelaise, elle accueille des appartements lumineux, du 2 au 5 pièces, tous prolongés par une terrasse, un balcon ou une loggia. La résidence s'inscrit dans un environnement à la fois dynamique et apaisé, et offre un cadre de vie équilibré où l'effervescence des commerces, restaurants, espaces culturels côtoie la quiétude des berges de la Garonne.

En travaux

Livraison 3ème trimestre 2028

Avantages fiscaux

Démembrement (Nue-Propriété), LMNP neuf

Accédez à notre page dédiée au programme "Bordeaux Belvedere" pour tout savoir sur la résidence, ses prestations et son quartier.

Autres biens disponibles

Le programme neuf Bordeaux Belvedere, situé dans la ville de Bordeaux, est composé de 215 logements neufs de type appartement répartis en T1, T2, T3, T4, T5, livrés du 3ème trimestre 2028 au 3ème trimestre 2028 et destinés aux différents projets : résidence principale, résidence secondaire et investissement locatif. Ce programme neuf est éligible aux dispositifs Nue-Propriété (Démembrement), LMNP et Droit Commun pour habiter ou investir à Bordeaux.
Appartement 1 pièce
186 biens disponibles
N° de lot
Surface
Commodités
Étage
Exposition
Lot n°51025102
18 m²
Étage 1
Exposition : OuestOuest
Lot n°51045104
18 m²
Étage 1
Exposition : OuestOuest
Lot n°51065106
18 m²
Étage 1
Exposition : OuestOuest
Lot n°51085108
17 m²
Étage 1
Exposition : EstEst
Lot n°51105110
26 m²
Étage 1
Exposition : EstEst
Lot n°51125112
18 m²
Étage 1
Exposition : EstEst
Lot n°51145114
18 m²
Étage 1
Exposition : EstEst
Lot n°51165116
19 m²
Étage 1
Exposition : Sud-estSud-est
Lot n°51185118
19 m²
Étage 1
Exposition : Sud-estSud-est
Lot n°51205120
19 m²
Étage 1
Exposition : Sud-estSud-est
Lot n°52015201
18 m²
Étage 2
Exposition : OuestOuest
Lot n°52035203
17 m²
Étage 2
Exposition : OuestOuest
Lot n°52055205
18 m²
Étage 2
Exposition : OuestOuest
Lot n°52075207
18 m²
Étage 2
Exposition : OuestOuest
Lot n°52095209
18 m²
Étage 2
Exposition : EstEst
Lot n°52115211
18 m²
Étage 2
Exposition : EstEst
Lot n°52135213
19 m²
Étage 2
Exposition : EstEst
Lot n°52155215
26 m²
Étage 2
Exposition : Sud-estSud-est
Lot n°52175217
18 m²
Étage 2
Exposition : Sud-estSud-est
Lot n°52195219
24 m²
Étage 2
Exposition : Sud-estSud-est
Lot n°52215221
17 m²
Étage 2
Exposition : Sud-estSud-est
Lot n°52235223
18 m²
Étage 2
Exposition : Nord-ouestNord-ouest
Lot n°52255225
18 m²
Étage 2
Exposition : Nord-ouestNord-ouest
Lot n°52275227
18 m²
Étage 2
Exposition : Nord-ouestNord-ouest
Lot n°51225122
18 m²
Étage 1
Exposition : Nord-ouestNord-ouest
Lot n°51245124
18 m²
Étage 1
Exposition : Nord-ouestNord-ouest
Lot n°51265126
18 m²
Étage 1
Exposition : Nord-ouestNord-ouest
Lot n°53025302
18 m²
Étage 3
Exposition : OuestOuest
Lot n°53045304
17 m²
Étage 3
Exposition : OuestOuest
Lot n°53065306
18 m²
Étage 3
Exposition : OuestOuest
Lot n°53085308
17 m²
Étage 3
Exposition : EstEst
Lot n°53105310
25 m²
Étage 3
Exposition : EstEst
Lot n°53125312
18 m²
Étage 3
Exposition : EstEst
Lot n°53145314
18 m²
Étage 3
Exposition : EstEst
Lot n°53165316
19 m²
Étage 3
Exposition : Sud-estSud-est
Lot n°53185318
19 m²
Étage 3
Exposition : Sud-estSud-est
Lot n°53205320
19 m²
Étage 3
Exposition : Sud-estSud-est
Lot n°53225322
17 m²
Étage 3
Exposition : Sud-estSud-est
Lot n°53245324
18 m²
Étage 3
Exposition : Nord-ouestNord-ouest
Lot n°53265326
18 m²
Étage 3
Exposition : Nord-ouestNord-ouest
Lot n°54015401
18 m²
Étage 4
Exposition : OuestOuest
Lot n°54035403
17 m²
Étage 4
Exposition : OuestOuest
Lot n°54055405
18 m²
Étage 4
Exposition : OuestOuest
Lot n°54075407
18 m²
Étage 4
Exposition : OuestOuest
Lot n°54095409
18 m²
Étage 4
Exposition : EstEst
Lot n°54115411
18 m²
Étage 4
Exposition : EstEst
Lot n°54135413
19 m²
Étage 4
Exposition : EstEst
Lot n°54155415
26 m²
Étage 4
Exposition : Sud-estSud-est
Lot n°54175417
18 m²
Étage 4
Exposition : Sud-estSud-est
Lot n°54195419
24 m²
Étage 4
Exposition : Sud-estSud-est
Lot n°54215421
17 m²
Étage 4
Exposition : Sud-estSud-est
Lot n°54235423
18 m²
Étage 4
Exposition : Nord-ouestNord-ouest
Lot n°54255425
18 m²
Étage 4
Exposition : Nord-ouestNord-ouest
Lot n°54275427
18 m²
Étage 4
Exposition : Nord-ouestNord-ouest
Lot n°55025502
18 m²
Étage 5
Exposition : OuestOuest
Lot n°55045504
17 m²
Étage 5
Exposition : OuestOuest
Lot n°55085508
17 m²
Étage 6
Exposition : EstEst
Lot n°55105510
25 m²
Étage 5
Exposition : EstEst
Lot n°55125512
18 m²
Étage 5
Exposition : EstEst
Lot n°55145514
18 m²
Étage 5
Exposition : EstEst
Lot n°55165516
19 m²
Étage 5
Exposition : Sud-estSud-est
Lot n°55185518
19 m²
Étage 5
Exposition : Sud-estSud-est
Lot n°55205520
19 m²
Étage 5
Exposition : Sud-estSud-est
Lot n°55225522
17 m²
Étage 5
Exposition : Nord-ouestNord-ouest
Lot n°55245524
18 m²
Étage 5
Exposition : Nord-ouestNord-ouest
Lot n°55265526
18 m²
Étage 5
Exposition : Nord-ouestNord-ouest
Lot n°56015601
18 m²
Étage 6
Exposition : OuestOuest
Lot n°56035603
17 m²
Étage 6
Exposition : OuestOuest
Lot n°56055605
18 m²
Étage 6
Exposition : OuestOuest
Lot n°56075607
18 m²
Étage 6
Exposition : OuestOuest
Lot n°56095609
18 m²
Étage 6
Exposition : EstEst
Lot n°56115611
18 m²
Étage 6
Exposition : EstEst
Lot n°56135613
19 m²
Étage 6
Exposition : EstEst
Lot n°56155615
26 m²
Étage 6
Exposition : Sud-estSud-est
Lot n°56175617
18 m²
Étage 6
Exposition : Sud-estSud-est
Lot n°56195619
24 m²
Étage 6
Exposition : Sud-estSud-est
Lot n°56215621
17 m²
Étage 6
Exposition : Sud-estSud-est
Lot n°56235623
18 m²
Étage 6
Exposition : Nord-ouestNord-ouest
Lot n°56255625
18 m²
Étage 6
Exposition : Nord-ouestNord-ouest
Lot n°56275627
18 m²
Étage 6
Exposition : Nord-ouestNord-ouest
Lot n°57025702
18 m²
Étage 7
Exposition : OuestOuest
Lot n°57045704
17 m²
Étage 7
Exposition : OuestOuest
Lot n°57065706
18 m²
Étage 7
Exposition : OuestOuest
Lot n°57085708
17 m²
Étage 7
Exposition : EstEst
Lot n°57105710
25 m²
Étage 7
Exposition : EstEst
Lot n°57125712
18 m²
Étage 7
Exposition : EstEst
Lot n°57145714
18 m²
Étage 7
Exposition : EstEst
Lot n°57165716
19 m²
Étage 7
Exposition : Sud-estSud-est
Lot n°57185718
19 m²
Étage 7
Exposition : Sud-estSud-est
Lot n°57205720
19 m²
Étage 7
Exposition : Sud-estSud-est
Lot n°57225722
17 m²
Étage 7
Exposition : Nord-ouestNord-ouest
Lot n°57245724
18 m²
Étage 7
Exposition : Nord-ouestNord-ouest
Lot n°57265726
18 m²
Étage 7
Exposition : Nord-ouestNord-ouest
Lot n°58015801
18 m²
Étage 8
Exposition : OuestOuest
Lot n°58035803
17 m²
Étage 8
Exposition : OuestOuest
Lot n°58055805
18 m²
Étage 8
Exposition : -
Lot n°58075807
18 m²
Étage 8
Exposition : OuestOuest
Lot n°58095809
18 m²
Étage 8
Exposition : EstEst
Lot n°58115811
18 m²
Étage 8
Exposition : EstEst
Lot n°58135813
19 m²
Étage 8
Exposition : EstEst
Lot n°58155815
26 m²
Étage 8
Exposition : Sud-estSud-est
Lot n°58175817
18 m²
Étage 8
Exposition : Sud-estSud-est
Lot n°58195819
24 m²
Étage 8
Exposition : Sud-estSud-est
Lot n°58215821
17 m²
Étage 8
Exposition : Sud-estSud-est
Lot n°58235823
18 m²
Étage 8
Exposition : Nord-ouestNord-ouest
Lot n°58255825
18 m²
Étage 8
Exposition : Nord-ouestNord-ouest
Lot n°58275827
18 m²
Étage 8
Exposition : Nord-ouestNord-ouest
Lot n°59045904
15 m²
Étage 9
Exposition : OuestOuest
Lot n°59065906
16 m²
Étage 9
Exposition : OuestOuest
Lot n°59085908
17 m²
Étage 9
Exposition : Nord-estNord-est
Lot n°59125912
16 m²
Étage 9
Exposition : -
Lot n°59105910
18 m²
Étage 9
Exposition : EstEst
Lot n°59145914
17 m²
Étage 9
Exposition : Sud-estSud-est
Lot n°59165916
16 m²
Étage 9
Exposition : Sud-estSud-est
Lot n°59205920
17 m²
Étage 9
Exposition : Nord-ouestNord-ouest
Lot n°59225922
17 m²
Étage 9
Exposition : Nord-ouestNord-ouest
Lot n°59235923
20 m²
Étage 9
Exposition : Nord-ouestNord-ouest
Lot n°42054205
18 m²
Étage 2
Exposition : Sud-ouestSud-ouest
Lot n°42014201
19 m²
Étage 2
Exposition : Sud-ouestSud-ouest
Lot n°42094209
19 m²
Étage 2
Exposition : Nord-estNord-est
Lot n°42074207
19 m²
Étage 2
Exposition : Nord-estNord-est
Lot n°42034203
19 m²
Étage 2
Exposition : Sud-ouestSud-ouest
Lot n°43174317
19 m²
Étage 3
Exposition : Sud-ouestSud-ouest
Lot n°41054105
18 m²
Étage 1
Exposition : Sud-ouestSud-ouest
Lot n°41154115
18 m²
Étage 1
Exposition : Nord-estNord-est
Lot n°41134113
18 m²
Étage 1
Exposition : Nord-estNord-est
Lot n°41014101
19 m²
Étage 1
Exposition : Sud-ouestSud-ouest
Lot n°41094109
19 m²
Étage 1
Exposition : Nord-estNord-est
Lot n°41174117
19 m²
Étage 1
Exposition : Sud-ouestSud-ouest
Lot n°41034103
19 m²
Étage 1
Exposition : Sud-ouestSud-ouest
Lot n°41074107
19 m²
Étage 1
Exposition : Nord-estNord-est
Lot n°42134213
18 m²
Étage 2
Exposition : Nord-estNord-est
Lot n°42154215
18 m²
Étage 2
Exposition : Nord-estNord-est
Lot n°43054305
18 m²
Étage 3
Exposition : Sud-ouestSud-ouest
Lot n°43154315
18 m²
Étage 3
Exposition : Nord-estNord-est
Lot n°42174217
19 m²
Étage 2
Exposition : Sud-ouestSud-ouest
Lot n°42194219
19 m²
Étage 2
Exposition : Sud-ouestSud-ouest
Lot n°44054405
18 m²
Étage 4
Exposition : EstEst
Lot n°44154415
18 m²
Étage 4
Exposition : Nord-estNord-est
Lot n°43014301
19 m²
Étage 3
Exposition : Sud-ouestSud-ouest
Lot n°43094309
19 m²
Étage 3
Exposition : Nord-estNord-est
Lot n°41114111
20 m²
Étage 1
Exposition : Nord-estNord-est
Lot n°43034303
19 m²
Étage 3
Exposition : Sud-ouestSud-ouest
Lot n°43074307
19 m²
Étage 3
Exposition : Nord-estNord-est
Lot n°45054505
18 m²
Étage 5
Exposition : Sud-ouestSud-ouest
Lot n°44134413
18 m²
Étage 4
Exposition : Nord-estNord-est
Lot n°45154515
18 m²
Étage 5
Exposition : Nord-estNord-est
Lot n°44014401
19 m²
Étage 4
Exposition : Sud-ouestSud-ouest
Lot n°44094409
19 m²
Étage 4
Exposition : Nord-estNord-est
Lot n°44174417
19 m²
Étage 4
Exposition : Sud-ouestSud-ouest
Lot n°42114211
20 m²
Étage 2
Exposition : Nord-estNord-est
Lot n°44034403
19 m²
Étage 4
Exposition : Sud-ouestSud-ouest
Lot n°44074407
19 m²
Étage 4
Exposition : Nord-estNord-est
Lot n°44194419
19 m²
Étage 4
Exposition : Sud-ouestSud-ouest
Lot n°46054605
18 m²
Étage 6
Exposition : Sud-ouestSud-ouest
Lot n°45134513
18 m²
Étage 5
Exposition : Nord-estNord-est
Lot n°46154615
18 m²
Étage 6
Exposition : Nord-estNord-est
Lot n°45014501
19 m²
Étage 5
Exposition : Sud-ouestSud-ouest
Lot n°45094509
19 m²
Étage 5
Exposition : Nord-estNord-est
Lot n°45174517
19 m²
Étage 5
Exposition : Sud-ouestSud-ouest
Lot n°43114311
20 m²
Étage 3
Exposition : Nord-estNord-est
Lot n°45034503
19 m²
Étage 5
Exposition : Sud-ouestSud-ouest
Lot n°45074507
19 m²
Étage 5
Exposition : Nord-estNord-est
Lot n°45194519
19 m²
Étage 5
Exposition : Sud-ouestSud-ouest
Lot n°47054705
18 m²
Étage 7
Exposition : Sud-ouestSud-ouest
Lot n°46134613
18 m²
Étage 6
Exposition : Nord-estNord-est
Lot n°47154715
18 m²
Étage 7
Exposition : Nord-estNord-est
Lot n°46014601
19 m²
Étage 6
Exposition : Sud-ouestSud-ouest
Lot n°46094609
19 m²
Étage 6
Exposition : Nord-estNord-est
Lot n°44114411
20 m²
Étage 4
Exposition : Nord-estNord-est
Lot n°46034603
19 m²
Étage 6
Exposition : Sud-ouestSud-ouest
Lot n°46074607
19 m²
Étage 6
Exposition : Nord-estNord-est
Lot n°46194619
19 m²
Étage 6
Exposition : Sud-ouestSud-ouest
Lot n°47134713
18 m²
Étage 7
Exposition : Nord-estNord-est
Lot n°47014701
19 m²
Étage 7
Exposition : Sud-ouestSud-ouest
Lot n°47094709
19 m²
Étage 7
Exposition : Nord-estNord-est
Lot n°47174717
19 m²
Étage 7
Exposition : Sud-ouestSud-ouest
Lot n°45114511
20 m²
Étage 5
Exposition : Nord-estNord-est
Lot n°47034703
19 m²
Étage 7
Exposition : Sud-ouestSud-ouest
Lot n°47074707
19 m²
Étage 7
Exposition : Nord-estNord-est
Lot n°47114711
20 m²
Étage 7
Exposition : Nord-estNord-est
Lot n°46114611
20 m²
Étage 6
Exposition : Nord-estNord-est
Lot n°41204120
23 m²
Étage 1
Exposition : Sud-ouestSud-ouest
Lot n°43204320
23 m²
Étage 3
Exposition : Sud-ouestSud-ouest
Lot n°47204720
23 m²
Étage 7
Exposition : Sud-ouestSud-ouest
Lot n°46174617
19 m²
Étage 6
Exposition : Sud-ouestSud-ouest
N° de lot
Surface
Commodités
Étage
Exposition
Lot n°14031403
45 m²
Parking
Étage 4
Exposition : EstEst
Lot n°16031603
45 m²
Parking
Étage 6
Exposition : EstEst
Lot n°17031703
45 m²
Parking
Étage 7
Exposition : EstEst
Lot n°32043204
54 m²
Parking
Étage 2
Exposition : EstEst
Lot n°34013401
41 m²
Parking
Étage 4
Exposition : SudSud
Lot n°28052805
56 m²
Parking, Terrasse / Balcon
Étage 8
Exposition : SudSud
Lot n°29052905
56 m²
Parking, Terrasse / Balcon
Étage 9
Exposition : SudSud
Lot n°32013201
41 m²
Parking
Étage 2
Exposition : SudSud
Lot n°15031503
45 m²
Parking, Cave
Étage 5
Exposition : EstEst
Lot n°34043404
54 m²
Parking
Étage 4
Exposition : EstEst
N° de lot
Surface
Commodités
Étage
Exposition
Lot n°34053405
75 m²
Parking
Étage 4
Exposition : Nord-estNord-est
Lot n°36013601
66 m²
Parking, Terrasse / Balcon
Étage 6
Exposition : Sud-ouestSud-ouest
Lot n°36033603
65 m²
Parking
Étage 6
Exposition : EstEst
Lot n°28042804
65 m²
Parking, Terrasse / Balcon
Étage 8
Exposition : SudSud
Lot n°29042904
65 m²
Parking
Étage 9
Exposition : SudSud
Lot n°17051705
62 m²
Parking
Étage 7
Exposition : Sud-ouestSud-ouest
Lot n°15051505
62 m²
Parking
Étage 5
Exposition : Sud-ouestSud-ouest
Lot n°31053105
75 m²
Parking
Étage 1
Exposition : Nord-estNord-est
Lot n°33053305
75 m²
Parking
Étage 3
Exposition : Nord-estNord-est
Lot n°32053205
75 m²
Parking
Étage 2
Exposition : Nord-estNord-est
Lot n°16041604
66 m²
Parking
Étage 6
Exposition : SudSud
N° de lot
Surface
Commodités
Étage
Exposition
Lot n°37033703
84 m²
Parking, Terrasse / Balcon
Étage 7
Exposition : Nord-estNord-est
Lot n°19011901
90 m²
Parking, Terrasse / Balcon
Étage 9
Exposition : Sud-ouestSud-ouest
Lot n°29122912
97 m²
Parking
Étage 9
Exposition : OuestOuest
N° de lot
Surface
Commodités
Étage
Exposition
Lot n°18021802
94 m²
Parking, Terrasse / Balcon
Étage 8
Exposition : EstEst
Lot n°37023702
99 m²
Parking, Terrasse / Balcon
Étage 7
Exposition : Nord-ouestNord-ouest