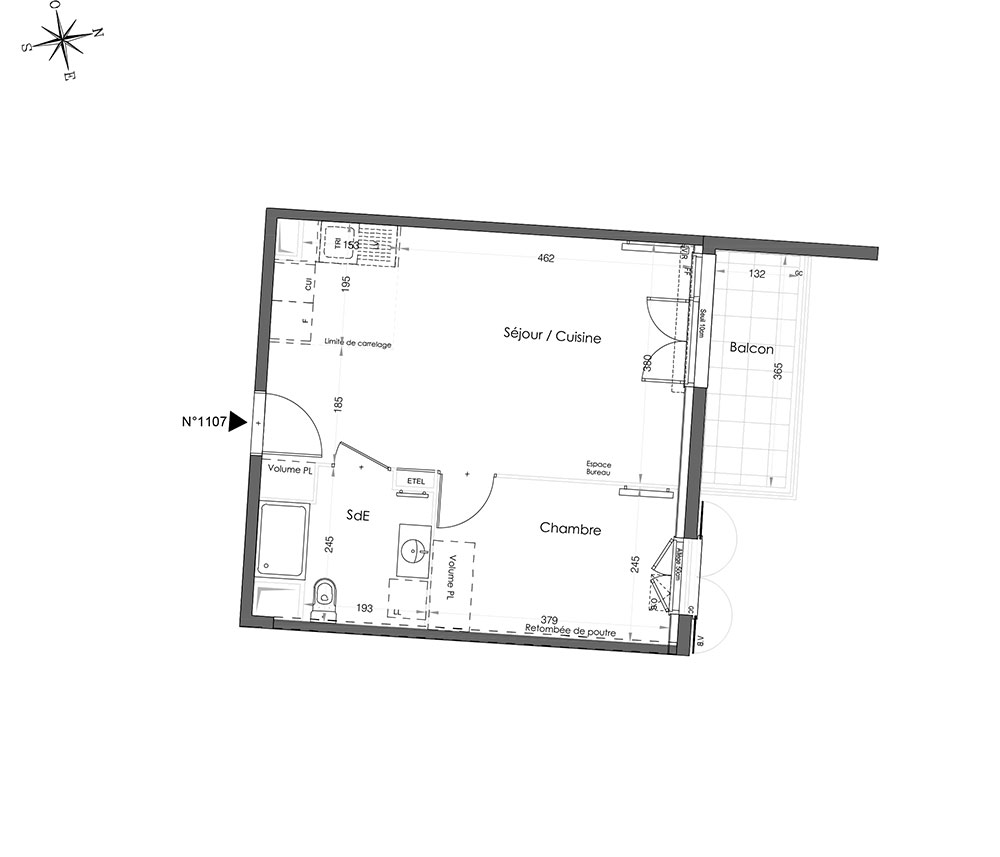
Appartement T2 n°1107 à Méry-sur-Oise (95540)
Prix : nous consulter
Residence Madria à Méry-sur-Oise
À noter
- Méry-sur-Oise
- Livraison 4ème trimestre 2027
- Résidence principale/secondaire
- Investissement locatif
- Votre suivi personnalisé Peterson.fr
- Garanti prix direct promoteur
Prestations et équipements
À propos du programme
À Méry-sur-Oise, avec COGEDIM ACCESS pour la 1ère fois vous pouvez devenir propriétaire de votre appartement neuf !
Entre ancrage historique et pleine nature, découvrez une adresse à l’art de vivre parfait, au cœur d’une commune paisible des rives de l’Oise. À seulement 350 mètres de la gare et 40 minutes de Paris, votre résidence neuve marie avec finesse pierre meulière authentique et prestations contemporaines.
Son généreux domaine paysager s’articule autour d’un espace boisé classé et de vastes jardins partagés, au cœur de l’espace. Huit maisons familiales avec jardins privatifs et des appartements modulables du studio au 4 pièces offrent des espaces de vie pensés pour votre bien-être. Orientations traversantes, terrasses généreuses, suite parentale ou plan modulable: trouvez l’intérieur qui vous ressemble. L'environnement privilégié conjugue praticité urbaine et sérénité champêtre, avec commerces, école et parc du Château accessibles à pied.
Méry-sur-Oise
En travaux

Accédez à notre page dédiée au programme "Residence Madria" pour tout savoir sur la résidence, ses prestations et son quartier.