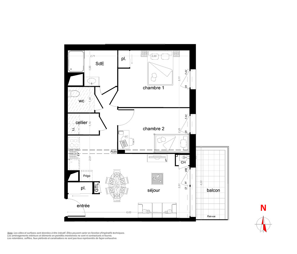
Appartement T3 n°1101 à Vezin-le-Coquet (35132)
Prix : nous consulter
L'ecrin à Vezin-le-Coquet
À noter
- Vezin-le-Coquet
- Livraison 3ème trimestre 2028
- Résidence principale/secondaire
- Investissement locatif
- Votre suivi personnalisé Peterson.fr
- Garanti prix direct promoteur
Prestations et équipements
À propos du programme
Nouvelle résidence à Vezin le Coquet : entre sérénité et vie citadineIdéalement située au coeur du bourg de Vezin Le Coquet et aux portes de Rennes, la résidence L'Ecrin offre un environnement naturel et bordé par un parc. Elle bénéficie d'un magnifique coeur paysager qui permet de belles vues dégagées. Découvrez les appartements du 2 au 3 pièces tous prolongés d'un jardin, balcon ou terrasse. Les prestations de qualités sont au RDV : ascenseur, parking privatif, nouvelles normes énergétiques Un lieu de vie idéal pour tous. Optez pour une vie paisible aux portes de Rennes, dans une résidence qui allie nature, confort et accessibilité. Pour vivre, profitez du PTZ ! pour investir, bénéficiez des avantages du LLI. Soyez les premiers et renseignez vous auprès de notre conseiller dès maintenant !
Vezin-le-Coquet
En travaux

Accédez à notre page dédiée au programme "L'ecrin" pour tout savoir sur la résidence, ses prestations et son quartier.
Autres biens disponibles
Un aperçu du nouveau programme immobilier « L'ecrin »
Vezin-le-Coquet intègre le projet « L'ecrin » à son parc immobilier. Ce programme propose 38 appartements neufs dont 38 sont encore disponibles. De type T2 et T3, ils satisferont les exigences des intéressés par l'investissement locatif tout comme à celles des personnes à la recherche d'une résidence principale ou secondaire. Au troisième trimestre 2028, les logements seront mis à disposition des habitants. De plus, sachez qu'ils sont éligibles aux dispositifs LMNP (loueur en meublé non professionnel) hors bail commercial et de droit commun.





