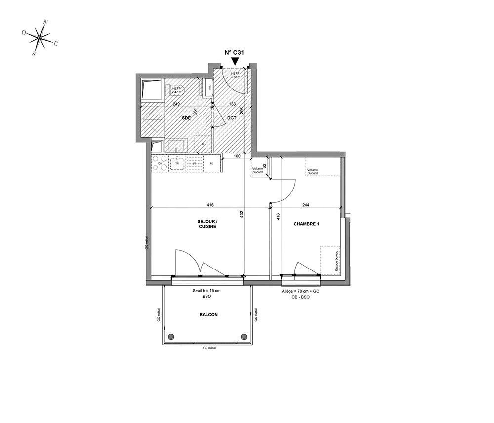
Appartement T2 n°C31 à Bron (69500)
Prix : nous consulter
Kaolin à Bron
À noter
- Bron
- Livraison 1er trimestre 2028
- Résidence principale/secondaire
- Investissement locatif
- Votre suivi personnalisé Peterson.fr
- Garanti prix direct promoteur
Prestations et équipements
À propos du programme
Offrez-vous une bulle d'air et de verdure en cœur de ville. Aux portes de Lyon, à Bron, cette nouvelle résidence déploie une architecture claire et chaleureuse autour d'un généreux parc intérieur. Balcons, loggias, terrasses et jardins arborés composent un ensemble pensé pour les modes de vie actifs et tournés vers l'extérieur. Les locaux vélos intégrés au paysage facilitent vos déplacements quotidiens.
Vous vivez connecté grâce aux lignes de tramway à quelques pas (et le futur T8 qui s'arrêtera au pied de votre immeuble dès 2029), aux écoles et commerces de proximité accessibles à pied. Un art de vivre sans contrainte qui respire l'authenticité lyonnaise dans un cadre verdoyant et moderne.
Bron
En travaux

Accédez à notre page dédiée au programme "Kaolin" pour tout savoir sur la résidence, ses prestations et son quartier.
Autres biens disponibles
Un aperçu du nouveau projet immobilier « Kaolin »
Bron inclut le projet « Kaolin » à son parc immobilier. 29 appartements neufs sont compris dans ce programme. À l'heure actuelle, 12 d'entre eux restent toujours disponibles. Ils peuvent tout à fait faire office de résidence principale ou secondaire ou même d'investissement locatif et sont de type T1, T2, T3 et T4. Les biens sont prévus au 1er trimestre 2028 et sont éligibles aux dispositifs LMNP (loueur en meublé non professionnel) hors bail commercial et de droit commun.