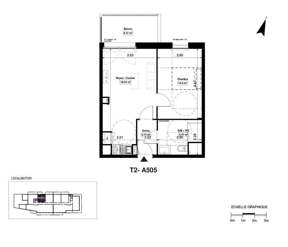
Appartement T2 n°A505 à Boulogne-sur-Mer (62200)
Prix : nous consulter
Néréides à Boulogne-sur-Mer
À noter
- Boulogne-sur-Mer
- Livraison 4ème trimestre 2028
- Résidence principale/secondaire
- Investissement locatif
- Votre suivi personnalisé Peterson.fr
- Garanti prix direct promoteur
Prestations et équipements
À propos du programme
Une nouvelle adresse de choix s’invite à Boulogne-sur-Mer ! Vivez ou investissez à proximité de la Marina, du casino et du centre-ville. Du 2 au 5 pièces, découvrez une résidence moderne offrant un large choix d’appartements neufs, conçus pour allier confort, luminosité et qualité de vie au quotidien.
Boulogne-sur-Mer
En travaux

Accédez à notre page dédiée au programme "Néréides" pour tout savoir sur la résidence, ses prestations et son quartier.
Autres biens disponibles
Tout savoir pour profiter du nouveau projet immobilier « Néréides »
« Néréides » est un programme immobilier dans le neuf à Boulogne-sur-Mer. Ce programme contient 50 appartements neufs qui s'ajoutent au parc immobilier local. 49 d'entre eux sont encore disponibles. Pour un investissement locatif, une résidence principale ou secondaire, ils pourraient vous intéresser (ils sont de type T2, T3, T4 et T5). Les biens sont éligibles au dispositif de droit commun. La livraison, quant à elle, est programmée fin décembre 2028.
Investissez malin !
Ce programme peut bénéficier de nombreux avantages financiers adaptés à votre projet immobilier neuf :
Je recherche un bien pour...

