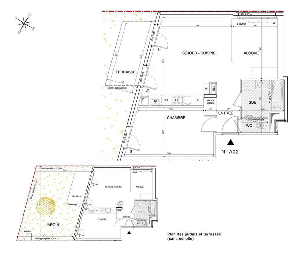
Appartement T2 n°A02 à Vichy (03200)
Prix : nous consulter
Ressources à Vichy
À noter
- Vichy
- Livraison 4ème trimestre 2027
- Résidence principale/secondaire
- Investissement locatif
- Votre suivi personnalisé Peterson.fr
- Garanti prix direct promoteur
Prestations et équipements
À propos du programme
Laissez-vous séduire par une nouvelle adresse de charme au cœur d'une ville thermale classée au patrimoine mondial de l’UNESCO. Dans cette résidence intimiste aux lignes contemporaines et aux belles toitures en tuiles rouges, découvrez des appartements du 2 au 4 pièces prolongés de beaux extérieurs ensoleillés.
Certifiés RE 2020 et NF Habitat, les intérieurs vous offrent un cadre de vie idéal à 10 min à pied du centre-ville et de la gare. Un investissement patrimonial d'avenir dans une ville réputée pour son art de vivre.
Vichy
En travaux

Accédez à notre page dédiée au programme "Ressources" pour tout savoir sur la résidence, ses prestations et son quartier.
Autres biens disponibles
Découvrez le nouveau programme immobilier « Ressources »
Vichy abrite le projet immobilier neuf « Ressources ». Ce projet comporte 36 appartements neufs et 35 d'entre eux restent encore disponibles. Ils sont de type T2, T3 et T4 et pourront être occupés au titre de résidence principale ou secondaire mais se prêtent également à l'investissement locatif. À la fin de l'année 2027, les biens seront mis à disposition des habitants. De plus, sachez qu'ils sont éligibles aux dispositifs de droit commun et LMNP (loueur en meublé non professionnel) hors bail commercial.

