Maison T5 n°M002 à Genas (69740)
Prix : nous consulter
Les Villas Gambetta - Maisons à Genas
À noter
- Genas
- Votre suivi personnalisé Peterson.fr
- Garanti prix direct promoteur
Prestations et équipements
À propos du programme
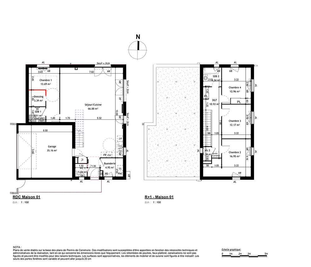
À Genas, aux portes de Lyon, Les Villas Gambetta vous proposent une opportunité rare : devenir propriétaire d’une maison neuve de 5 pièces dans un cadre résidentiel verdoyant, tout en profitant de la vitalité de la métropole. Ce nouveau domaine allie modernité architecturale, confort de vie et performance énergétique grâce à la norme RE2020. À proximité immédiate des écoles, commerces et services, vous profitez d’un quotidien fluide et pratique dans une commune recherchée.
Les maisons, d’une surface généreuse comprise entre 120 et 150 m², sont conçues pour répondre aux attentes des familles en quête d’espace et de confort. Chaque logement dispose d’un vaste séjour lumineux avec cuisine ouverte, prolongé par de larges baies vitrées donnant sur un jardin privatif engazonné de min. 400 m2 ! La configuration intérieure privilégie la fonctionnalité avec une chambre en rez-de-chaussée, véritable suite parentale avec sa salle d’eau privative et 3 chambres à l’étage pensées pour préserver l’intimité de chacun. Une salle de bain complète cet étage pour plus de praticité.
Les prestations de qualité incluent garage fermé, cellier, deux places de stationnement et même un toit-terrasse végétalisé au-dessus du garage, apportant une touche contemporaine et élégante. Investir dans une maison des Villas Gambetta, c’est faire le choix d’un bien rare dans un secteur où l’offre neuve est limitée. C’est aussi garantir à votre famille un cadre de vie harmonieux, associant le calme d’un quartier résidentiel et la proximité directe de Lyon. Ces dernières opportunités sont éligibles au Prêt à Taux Zéro et bénéficient de conditions avantageuses pour les premiers réservataires.
Confort moderne, extérieur privatif et emplacement stratégique : Les Villas Gambetta sont une adresse à saisir dès aujourd’hui.
Genas

Accédez à notre page dédiée au programme "Les Villas Gambetta - Maisons" pour tout savoir sur la résidence, ses prestations et son quartier.
Autres biens disponibles
Tout savoir sur le programme neuf « Les Villas Gambetta - Maisons »
« Les Villas Gambetta - Maisons » est un projet immobilier dans le neuf à Genas. Ce projet compte 11 maisons et appartements neufs dont 7 sont toujours disponibles. Ce programme met à votre portée des logements allant du T3 au T5. Il est pertinent de noter qu'ils sont éligibles au dispositif de droit commun.