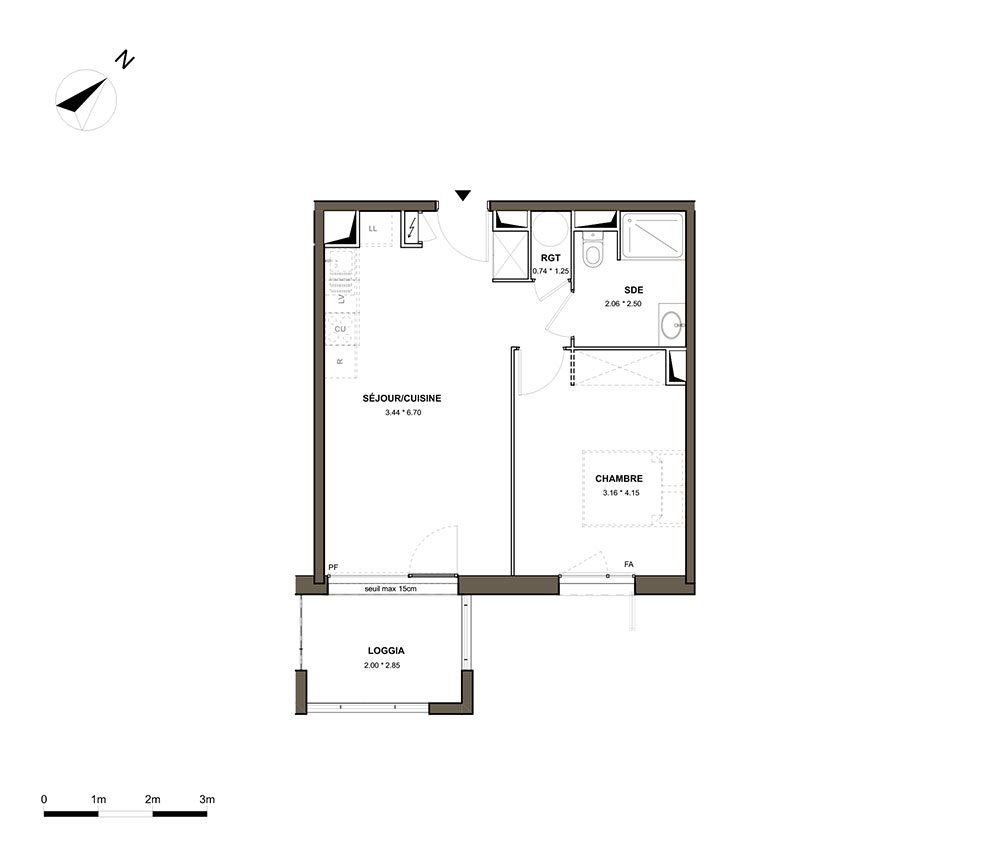
Appartement T2 n°A24 à Fenouillet (31150)
Prix : nous consulter
Botanika à Fenouillet
À noter
- Fenouillet
- Livraison 2ème trimestre 2028
- Résidence principale/secondaire
- Investissement locatif
- Votre suivi personnalisé Peterson.fr
- Garanti prix direct promoteur
Prestations et équipements
À propos du programme
La résidence Botanika, imaginée par l'agence Colegram Architectes, se distingue par une architecture moderne et épurée. Ses deux bâtiments, aux lignes sobres et contemporaines, sont habillés d'un enduit blanc cassé qui reflète une grande légèreté visuelle. Les façades sont animées par des loggias, certaines avec des garde-corps en béton gris-vert, qui rythment l'ensemble tout en apportant une touche graphique à la composition. Le choix de l'architecture repose sur l'intégration parfaite dans le quartier, tout en offrant un cadre agréable et contemporain aux résidents. Les appartements de Botanika, allant du 2 au 4 pièces, sont conçus pour offrir un confort optimal au quotidien. Chaque logement bénéficie d'une luminosité naturelle grâce à une double orientation ou une exposition plein sud, ainsi qu'à des baies généreuses. Les pièces de vie s'ouvrent sur des loggias, véritable prolongement de l'espace intérieur, offrant ainsi un coin de tranquillité et de détente. En outre, les appartements sont pensés pour maximiser l'intimité et la fonctionnalité, avec des chambres séparées des espaces de vie et des plans offrant dans la grande majorité des rangements pratiques comme un cellier ou une suite parentale dans les appartements de 4 pièces.
Fenouillet
En travaux

Accédez à notre page dédiée au programme "Botanika" pour tout savoir sur la résidence, ses prestations et son quartier.
Autres biens disponibles
Venez découvrir « Botanika »
Le projet de logements neufs « Botanika » est un programme situé à Fenouillet. On peut compter dans ce projet 37 appartements neufs. 37 de ces derniers sont, quant à eux, encore disponibles. Allant du T2 au T4, ils se destinent plutôt aux personnes intéressées par l'investissement locatif mais conviennent également pour investir dans une résidence principale ou secondaire. Remarquez dès à présent qu'ils sont éligibles au dispositif de droit commun.






