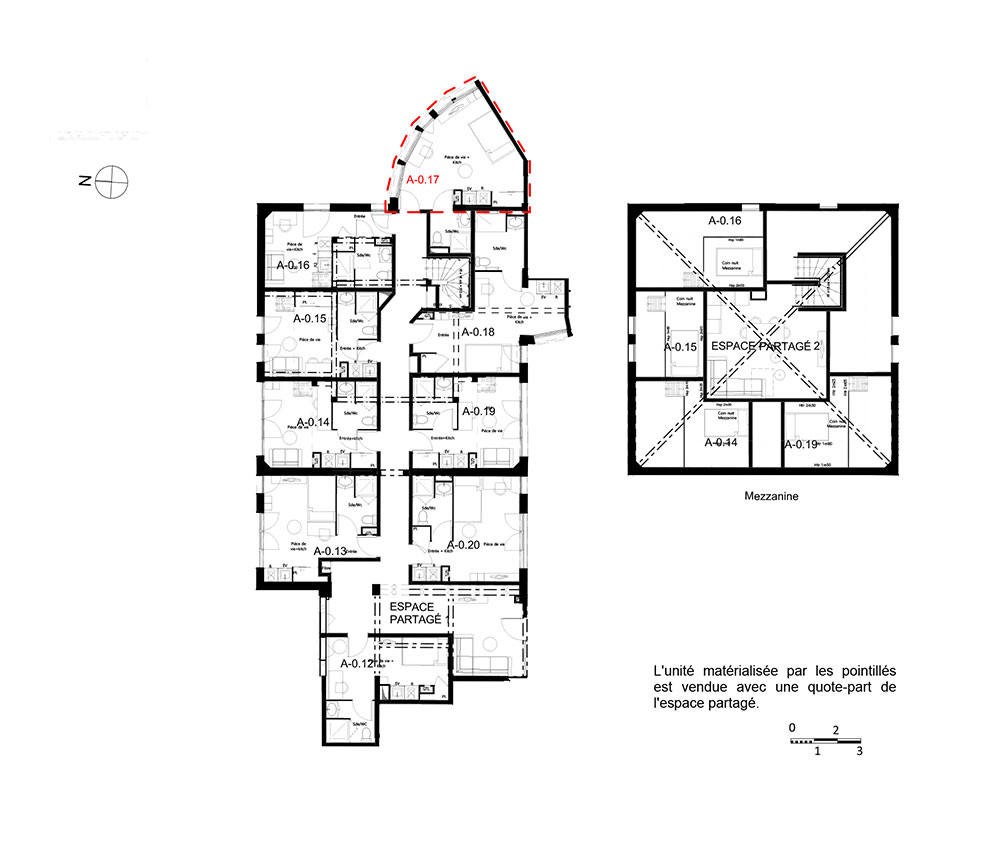
Appartement T1 n°A017 à Sud-est (secteur 5) Toulouse (31300)
Prix : nous consulter
Studently Toulouse l'Ormeau à Sud-est (secteur 5) - Toulouse
À noter
- Toulouse
- Livraison 4ème trimestre 2026
- Investissement locatif
- Votre suivi personnalisé Peterson.fr
- Garanti prix direct promoteur
Ce programme propose des biens éligibles aux dispositifs de défiscalisation suivant :
À propos du programme
Résidence seniors hier, la résidence Studently Toulouse L'Ormeau se transforme entièrement pour devenir une résidence étudiante. Composée de 112 unités d’hébergement, réparties dans 84 appartements du T1 au T10 (colocation pour 9 personnes), la résidence offre également des espaces communs chaleureux. À l’intérieur une salle de détente et une salle de fitness permettent aux étudiants de se retrouver et partager des moments de convivialité. À l’extérieur, les résidents pourront profiter de la terrasse commune et de se détendre autour d’une partie de pétanque ou de ping-pong.

Accédez à notre page dédiée au programme "Studently Toulouse l'Ormeau" pour tout savoir sur la résidence, ses prestations et son quartier.

