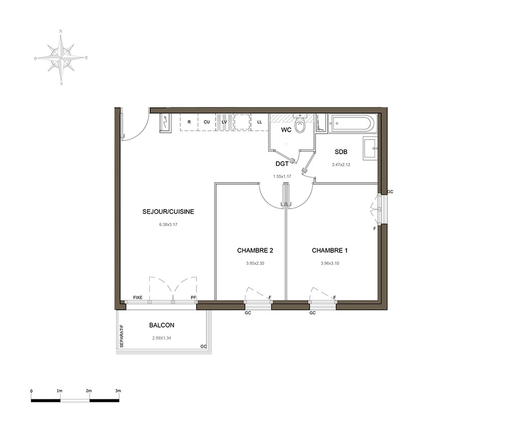
Appartement T3 n°B205 à Ligné (44850)
Prix : nous consulter
Le Clos de la Charmoise à Ligné
À noter
- Ligné
- Livraison 4ème trimestre 2027
- Résidence principale/secondaire
- Investissement locatif
- Votre suivi personnalisé Peterson.fr
- Garanti prix direct promoteur
Prestations et équipements
À propos du programme
Le Clos de la Charmoise, situé à Ligné (44), à seulement 30 minutes du centre de Nantes, propose une résidence au charme intemporel, intégrant harmonieusement une architecture traditionnelle et moderne. Ce programme immobilier se compose d'appartements neufs, allant du studio au 4 pièces, chacun offrant un balcon ou un jardin individuel pour un cadre de vie agréable. Les bâtiments de cette résidence, d'une hauteur modeste de deux étages et coiffés de toitures en tuiles de ton ardoise, s'intègrent parfaitement au paysage urbain tout en respectant l'architecture traditionnelle de la région. Le soin apporté à la réalisation est visible à travers l'utilisation de matériaux de qualité tels que les briquettes rouges, les chaînages d'angle, et les frontons décoratifs. Les façades animées d'enduits contrastés ajoutent un caractère unique à l'ensemble. Chaque logement, qu'il s'agisse d'un studio ou d'un 4 pièces, a été conçu pour offrir un confort optimal et une grande luminosité. La majorité des appartements disposent d'un espace extérieur privatif, que ce soit sous forme de balcon ou de jardin, permettant de profiter de l'extérieur en toute tranquillité. Certains appartements bénéficient également d'une double orientation, garantissant une clarté naturelle abondante et une ventilation optimale en toute saison.
Ligné
En travaux

Accédez à notre page dédiée au programme "Le Clos de la Charmoise" pour tout savoir sur la résidence, ses prestations et son quartier.