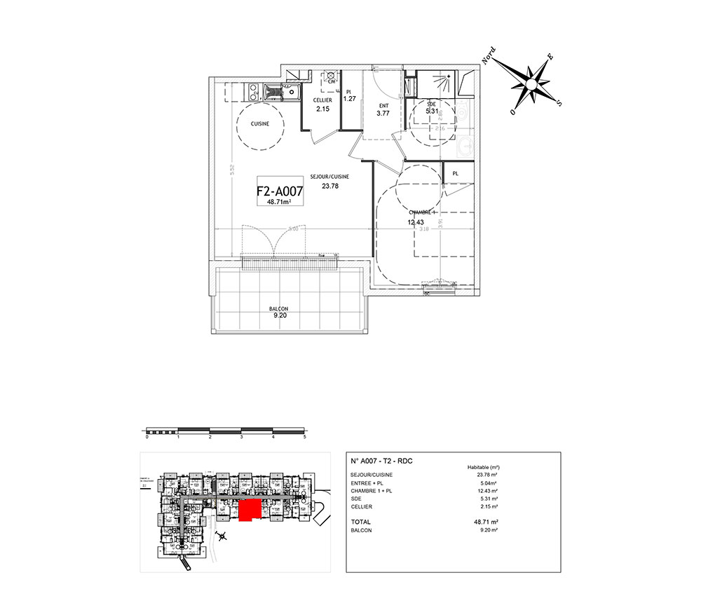
Appartement T2 n°7A007 à Pont-l'Evêque (14130)
Prix : nous consulter
Les Jardins de Ponti à Pont-l'Evêque
Appartement
T2 / F2 / 2 pièces
48,71 m² habitables
RDC
Sud-ouest
1 chambre
Station. 1
Balcon 9 m²
À noter
- Pont-l'Evêque
- Résidence principale/secondaire
- Investissement locatif
- Votre suivi personnalisé Peterson.fr
- Garanti prix direct promoteur
Prestations et équipements
À propos du programme
.
Pont-l'Evêque

Accédez à notre page dédiée au programme "Les Jardins de Ponti" pour tout savoir sur la résidence, ses prestations et son quartier.
Autres biens disponibles
Découvrez le nouveau programme immobilier « Les Jardins de Ponti »
« Les Jardins de Ponti » est un projet immobilier neuf situé à Pont-l'Évêque. Dans ce programme, ce sont 27 appartements neufs qui sont proposés. 27 d'entre eux sont encore sur le marché. Allant du T2 au T4, ils peuvent aussi bien convenir aux personnes envisageant un investissement locatif que celles qui cherchent une résidence principale ou secondaire. Ils sont éligibles au dispositif de droit commun.
N° de lot
Surface
Commodités
Étage
Exposition
N° de lot
Surface
Commodités
Étage
Exposition
N° de lot
Surface
Commodités
Étage
Exposition

