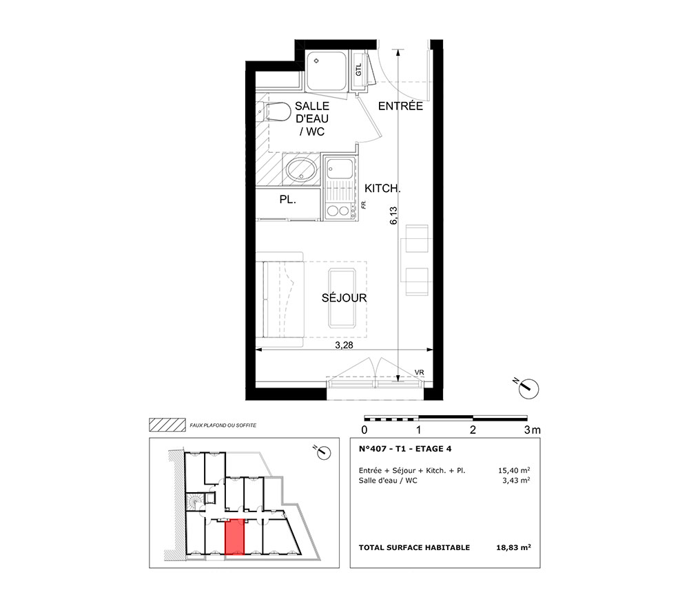
Appartement T1 n°407 à Sud-est (secteur 5) Toulouse (31300)
Prix : nous consulter
Prim'House Midi à Sud-est (secteur 5) - Toulouse
Appartement
T1 / F1 / 1 pièce
18,83 m² habitables
4ème étage
Sud-ouest
0 chambre
À noter
- Toulouse
 - Livraison 2ème trimestre 2027
 - Résidence principale/secondaire
 - Investissement locatif
 
- Votre suivi personnalisé Peterson.fr
 - Garanti prix direct promoteur
 
À propos du programme
.
Sud-est (secteur 5)
En travaux
Livraison 2ème trimestre 2027

Accédez à notre page dédiée au programme "Prim'House Midi" pour tout savoir sur la résidence, ses prestations et son quartier.
Autres biens disponibles
Aperçu du programme neuf « Prim'House Midi »
« Prim'House Midi » est un programme immobilier dans le neuf à Toulouse. Ce projet compte 7 appartements neufs et 7 d'entre eux restent encore disponibles. Ils sont de type T1 et pourront être occupés à titre de résidence principale ou secondaire mais se prêtent également à l'investissement locatif. Vous serez libres de disposer de votre bien, éligible aux dispositifs LMNP (loueur en meublé non professionnel) hors bail commercial et de droit commun, fin juin 2027.
N° de lot
Surface
Commodités
Étage
Exposition


