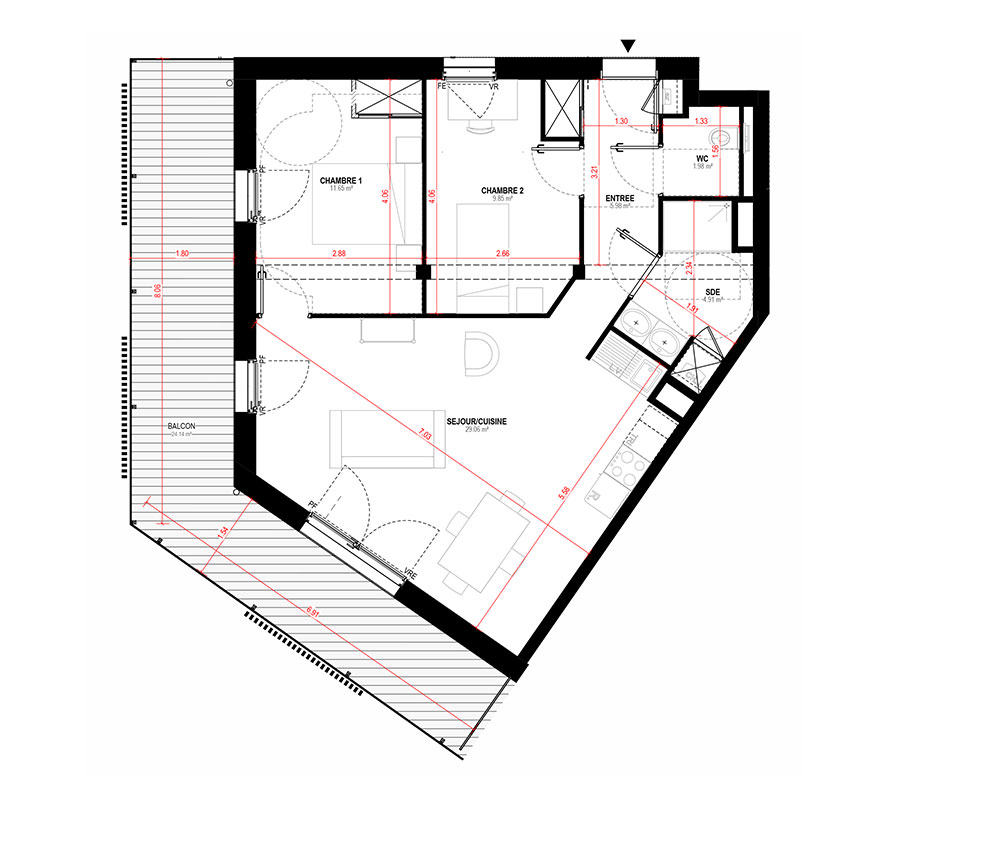
Appartement T3 n°A201 à Saint-Nazaire (44600)
Prix : nous consulter
Villas Conti à Saint-Nazaire
À noter
- Saint-Nazaire
- Livraison 1er trimestre 2028
- Résidence principale/secondaire
- Investissement locatif
- Votre suivi personnalisé Peterson.fr
- Garanti prix direct promoteur
Prestations et équipements
À propos du programme
Saint-Nazaire, ville d’art et d’histoire sur la côte Atlantique, séduit par son dynamisme industriel (Airbus, Chantiers de l’Atlantique) et son cadre de vie balnéaire. À seulement 35 minutes de Nantes en train, elle s’impose comme une ville en pleine mutation, portée par des projets urbains ambitieux. Le quartier de la Bouletterie, où s’implante la résidence Villa Conti, bénéficie d’une attractivité croissante grâce à sa proximité avec les écoles, les équipements sportifs et les commerces.
Saint-Nazaire séduit par son ambition de devenir une « ville-jardin au bord de l’océan », avec ses 250 hectares d’espaces verts, ses 20 plages et ses infrastructures modernes. Un cadre de vie attractif, entre mer, Loire et nature, idéal pour les actifs comme pour les familles.
Saint-Nazaire
En travaux

Accédez à notre page dédiée au programme "Villas Conti" pour tout savoir sur la résidence, ses prestations et son quartier.
Autres biens disponibles
Aperçu du programme neuf « Villas Conti »
Saint-Nazaire intègre le projet « Villas Conti » à son parc immobilier. 46 appartements neufs sont inclus dans ce programme. À l'heure actuelle, 46 d'entre eux restent encore sur le marché. Ils sont de type T1 bis, T2 et T3 et adaptés à la fois à une résidence principale ou secondaire et à un investissement locatif. Fin mars 2028, les logements seront livrés et notez qu'ils sont éligibles au dispositif de droit commun.
Investissez malin !
Ce programme peut bénéficier de nombreux avantages financiers adaptés à votre projet immobilier neuf :
Je recherche un bien pour...


