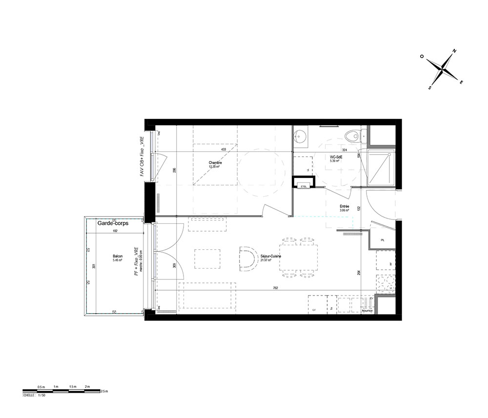
Appartement T2 n°LA105 à Roubaix (59100)
Prix : nous consulter
Botanika à Roubaix
À noter
- Roubaix
 - Livraison 4ème trimestre 2028
 - Résidence principale/secondaire
 - Investissement locatif
 
- Votre suivi personnalisé Peterson.fr
 - Garanti prix direct promoteur
 
Prestations et équipements
À propos du programme
À Roubaix, VINCI Immobilier vous propose BOTANIKA, une résidence à taille humaine pensée pour les familles et les actifs en quête de confort, de nature et de proximité. Située boulevard de Mulhouse, face au square Pierre Destombes, BOTANIKA vous offre un cadre de vie serein, au cœur d’un quartier vivant et bien desservi. Du 2 au 4 pièces, les 41 logements lumineux et bien agencés bénéficient de prestations de qualité : balcons ou terrasses, cœur d’îlot végétalisé, jardin partagé, composteur, boulodrome et espaces de convivialité. La résidence est certifiée NF Habitat et conforme à la RE2020, garantissant confort thermique, économies d’énergie et respect de l’environnement. Bonne nouvelle pour les accédants à la propriété : BOTANIKA est éligible à la TVA réduite à 5,5 %, une opportunité rare pour devenir propriétaire dans un cadre privilégié, tout en maîtrisant son budget. À proximité immédiate : commerces, écoles, équipements culturels (La Manufacture, La Condition Publique), transports (métro Eurotéléport à 15 min à pied, bus Ilévia), et de nombreux loisirs sportifs. BOTANIKA, c’est bien plus qu’un logement : c’est un art de vivre, une adresse où la nature reprend ses droits et où chaque jour se vit pleinement.
Roubaix
En travaux

Accédez à notre page dédiée au programme "Botanika" pour tout savoir sur la résidence, ses prestations et son quartier.
Autres biens disponibles
Investissez malin !
Ce programme peut bénéficier de nombreux avantages financiers adaptés à votre projet immobilier neuf :
Je recherche un bien pour...


