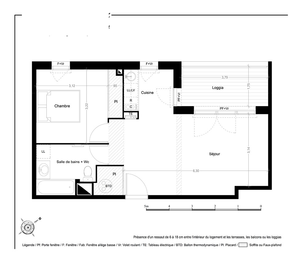
Appartement T2 n°112 à Cépet (31620)
Prix : nous consulter
Coeur Village à Cépet
À noter
- Cépet
- Livraison 4ème trimestre 2026
- Votre suivi personnalisé Peterson.fr
- Garanti prix direct promoteur
À propos du programme
Implantée dans le centre de Cépet, la résidence Coeur Village offre à ses habitants un cadre de vie qui cumule tous les atouts : une vie au calme, et bénéficiant aussi de toutes les commodités indispensables au quotidien : écoles, micro-crèche, commerces… La ville voisine de Bruguières, qui propose également une offre importante en termes de culture, loisirs et activités sportives : salle de spectacles Le Bascala, base de loisirs, cinéma, médiathèque ; ainsi que de nombreux commerces. Entourée par la nature et tournée vers la campagne, Cépet est une ville qui cultive la douceur de vivre typique de la région, à l’image du ruisseau Le Girou qui coule à deux pas de la résidence. Dans ce cadre bucolique et propice à la détente, les habitants bénéficient d’un lieu de vie agréable pour s’épanouir seuls, en couple ou en famille.
Cépet
En travaux

Accédez à notre page dédiée au programme "Coeur Village" pour tout savoir sur la résidence, ses prestations et son quartier.
Autres biens disponibles
Les grandes lignes du projet neuf « Cœur Village »
Cépet inclut le programme « Cœur Village » à son parc immobilier. Ce projet compte 28 appartements neufs dont 8 sont encore disponibles. Ce sont des logements allant du T2 au T4 qui sont construits dans ce programme. Les biens seront livrés fin décembre 2026, au terme des travaux, et sont éligibles au dispositif de droit commun.