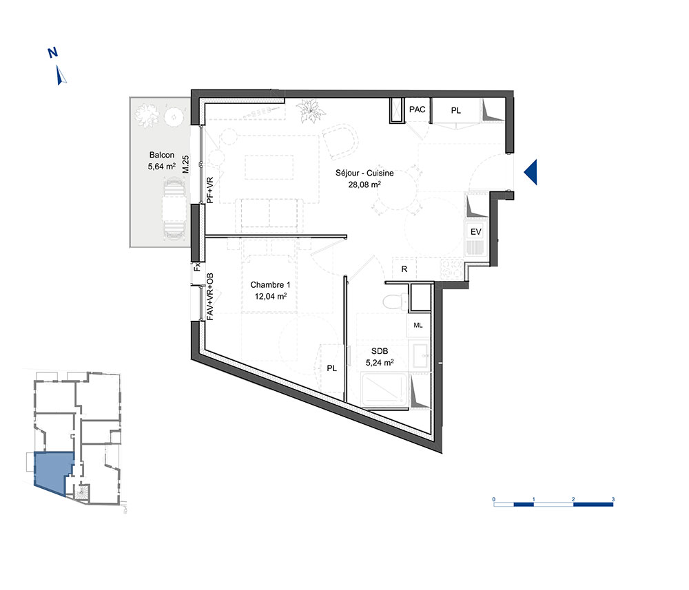
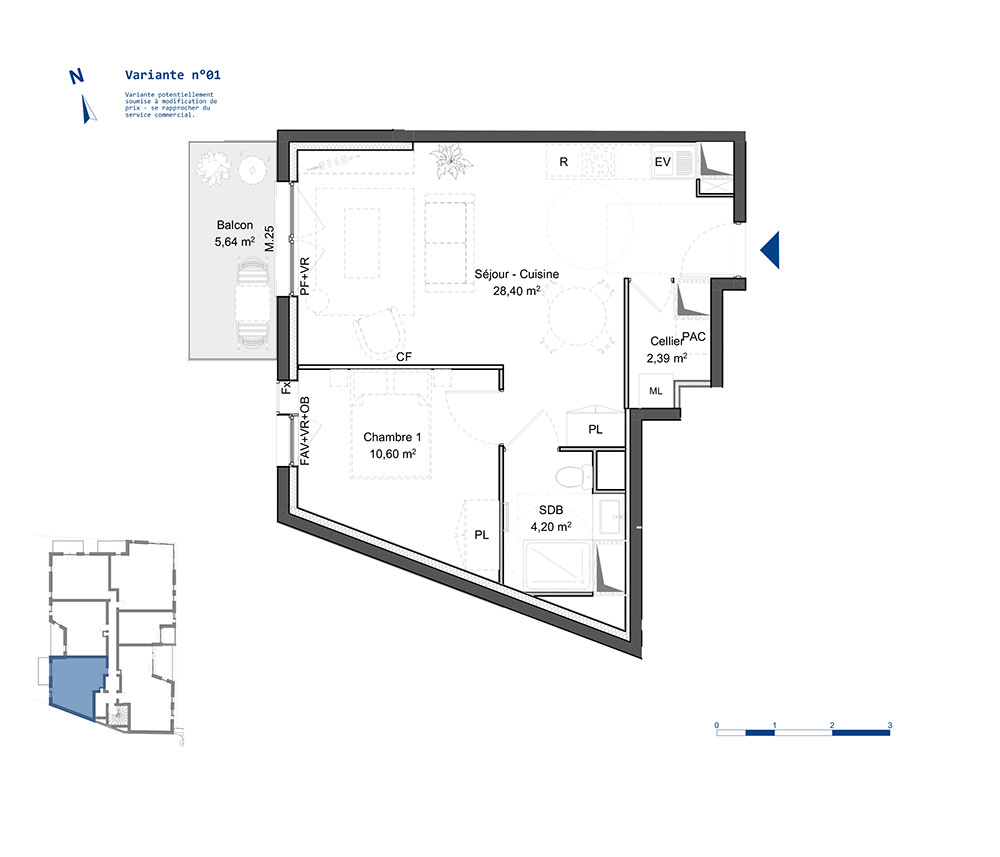
Appartement T2 n°LA201 à Amiens (80000)
Prix : nous consulter
Flow à Amiens
À noter
- Amiens
- Livraison 4ème trimestre 2027
- Résidence principale/secondaire
- Investissement locatif
- Votre suivi personnalisé Peterson.fr
- Garanti prix direct promoteur
Prestations et équipements
À propos du programme
Située au n°7 de la rue de Condé à Amiens, le long des berges du canal de la Somme, la nouvelle résidence FLOW signée VINCI Immobilier offre un cadre de vie privilégié, à proximité du centre-ville, des stations de bus, des commerces et des grands axes routiers de la capitale picarde. Bordée par le couvent des Sœurs Grises et le Service des Eaux, tous deux inscrits aux monuments historiques, la résidence vient subtilement réinventer l’histoire de cet environnement patrimonial préservé et paisible. Une maison individuelle de 5 pièces et un immeuble de seulement 23 appartements déclinés du studio au 5 pièces composent ce clos résidentiel intimiste et résolument moderne. Ici, l’architecture contemporaine donne le tempo. Les variations de volumes et de transparences créent des espaces intérieurs baignés de lumière naturelle et largement ouverts sur l’extérieur. Les nombreuses baies vitrées, balcons, loggias et terrasses en attique qui animent les derniers étages prolongent au quotidien l’expérience de ce bien-être résidentiel d’exception. A l’image des prestations de confort personnalisables qui vous sont proposées : choix sur plan de l’agencement des cloisons de votre futur logement (votre T4 ou T5 peut devenir un loft par exemple et s’adapter selon vos souhaits), choix des rangements intégrés, choix des matériaux et des finitions… Entièrement close et sécurisée, la résidence FLOW accueille en rez-de-chaussée un parking privé de 16 places et un local à vélos accessibles via un portail télécommandé depuis la rue de Condé.
Amiens
En travaux

Accédez à notre page dédiée au programme "Flow" pour tout savoir sur la résidence, ses prestations et son quartier.
Autres biens disponibles
Découvrez le projet neuf « Flow »
Le programme immobilier neuf « Flow » se situe à Amiens. Ce programme est composé de 19 appartements neufs dont 19 qui sont encore disponibles. Allant du T1 au T4, ils peuvent s'adapter aux exigences propres à un investissement locatif mais aussi à celles d'une résidence principale ou secondaire. Sachez que les biens sont éligibles au dispositif de droit commun et seront achevés fin décembre 2027.



