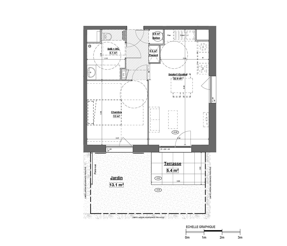
Appartement T2 n°B007 à Étaples (62630)
Prix : nous consulter
Le Domaine du Moulin à Étaples
À noter
- Étaples
- Livraison 2ème trimestre 2028
- Résidence principale/secondaire
- Investissement locatif
- Votre suivi personnalisé Peterson.fr
- Garanti prix direct promoteur
Prestations et équipements
À propos du programme
Vivez l’authenticité à Étaples, à deux pas du Touquet.
Sur les hauteurs de la ville, découvrez nos appartements 2 et 3 pièces (4 pièces possibles), tous prolongés d’un extérieur : grands balcons ou jardins privatifs.
Pensés pour votre confort, ils offrent des logements fonctionnels et une belle luminosité. La résidence, à taille humaine, mêle élégamment en façade brique, enduit clair et surmontés de brisis.
Stationnements privatifs, jardin paysager et calme en cœur de ville viennent parfaire le cadre. Située avenue du Vieux Moulin, à deux pas de la gare, face à un arrêt de bus et proche des services et commerces, elle vous place à seulement 10 minutes du Touquet, entre ville, nature et littoral.
Contactez dès maintenant un de nos conseillers pour découvrir tous nos appartements neufs à Etaples et être parmi les premiers à choisir le logement de vos rêves !
Étaples
En travaux

Accédez à notre page dédiée au programme "Le Domaine du Moulin" pour tout savoir sur la résidence, ses prestations et son quartier.
Autres biens disponibles
Nouveauté sur le marché de l'immobilier : en apprendre plus sur le projet « Le Domaine du Moulin »
Le programme de logements neufs « Le Domaine du Moulin » est un projet situé à Étaples. Ce programme se compose de 21 appartements neufs, dont 21 sont encore sur le marché pour le moment. Ils sont de type T2 et T3 et pourront être occupés au titre de résidence principale ou secondaire mais se prêtent aussi à l'investissement locatif. Les biens seront livrés au deuxième trimestre 2028, à l'issue des travaux, et sont éligibles au dispositif de droit commun.
Investissez malin !
Ce programme peut bénéficier de nombreux avantages financiers adaptés à votre projet immobilier neuf :
Je recherche un bien pour...