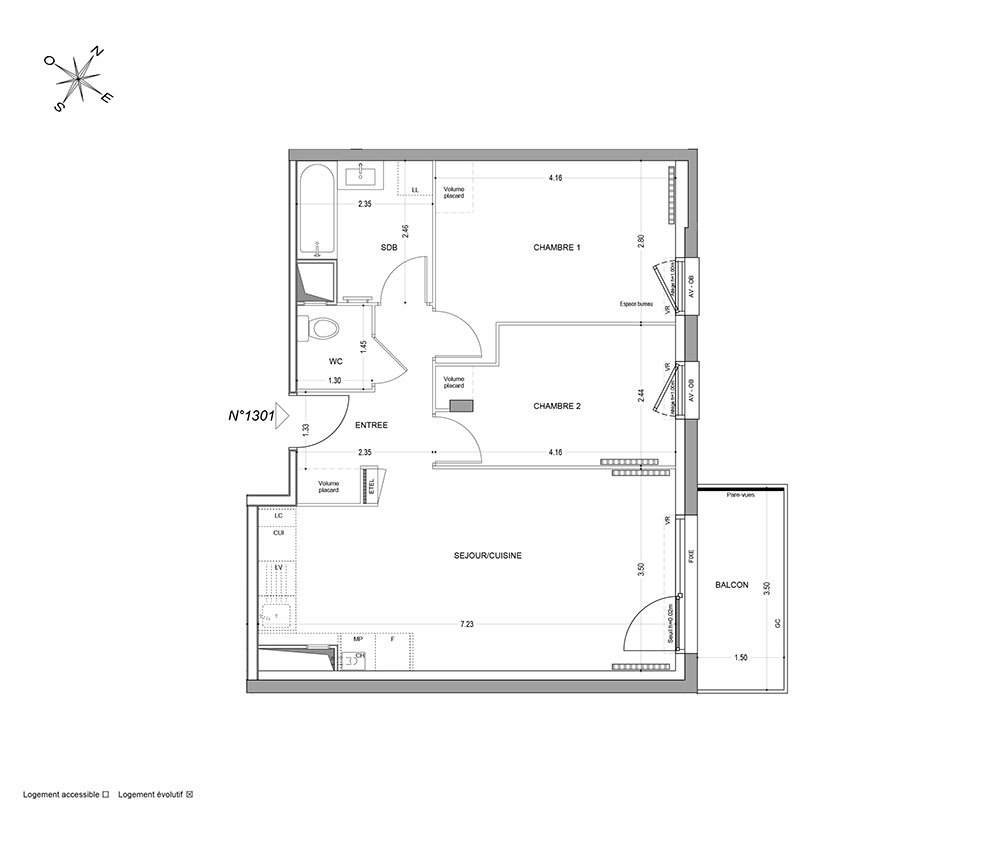
Appartement T3 n°1301 à Lens (62300)
Prix : nous consulter
Côté Centre à Lens
À noter
- Lens
- Livraison 1er trimestre 2028
- Résidence principale/secondaire
- Investissement locatif
- Votre suivi personnalisé Peterson.fr
- Garanti prix direct promoteur
Prestations et équipements
À propos du programme
À Lens, avec COGEDIM ACCESS pour la 1ère fois vous pouvez devenir propriétaire de votre appartement neuf en résidence principale.
Proche de toutes les commodités, la résidence Côté Centre se situe dans un environnement paisible à 10 min à pied du centre-ville et 15 min de la gare. Déclinés du 2 au 4 pièces, les appartements concentrent les avantages du neuf : agencements optimisés, prestations soignées, belle luminosité, performance acoustique et thermique, et espace extérieur privatif, balcon ou jardinet.
Lens
En travaux

Accédez à notre page dédiée au programme "Côté Centre" pour tout savoir sur la résidence, ses prestations et son quartier.
Autres biens disponibles
Le projet « Côté Centre » s'intègre dans le marché immobilier local
Le projet immobilier neuf « Côté Centre » se situe à Lens. 44 appartements neufs sont inclus dans ce programme. À l'heure actuelle, 44 d'entre eux restent encore disponibles. Allant du T2 au T4, ils s'adressent plutôt aux personnes intéressées par l'investissement locatif mais conviennent également pour investir dans une résidence principale ou secondaire. Au premier trimestre 2028, les biens seront achevés et vous pouvez également noter qu'ils sont éligibles aux dispositifs LMNP (loueur en meublé non professionnel) hors bail commercial et de droit commun.

