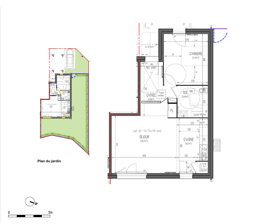
Appartement T2 n°M005 à La Limouzinière (44310)
Prix : nous consulter
Le Domaine De Bellevue à La Limouzinière
À noter
- La Limouzinière
- Livraison 4ème trimestre 2027
- Résidence principale/secondaire
- Investissement locatif
- Votre suivi personnalisé Peterson.fr
- Garanti prix direct promoteur
Prestations et équipements
À propos du programme
Découvrez « Le Domaine de Bellevue », votre nouvel havre de paix, dans une commune résidentielle où il fait bon vivre. Situé rue de la Moncire, European Homes est fier de présenter son nouveau projet comprenant 16 maisons individuelles de plain-pied de 2 ou 3 pièces et 4 Villas-Jardins de 3 pièces duplex. Depuis 50 ans, European Homes réinvente l’habitat avec son concept unique des VILLAS-JARDINS rendant possible le rêve d’une maison, à partir de 60 m2, agrémentée de son jardin privatif engazonné. Ainsi grâce à la recherche constante de la maîtrise de coûts, European Homes ouvre la propriété et la qualité de vie au plus grand nombre au prix juste. \n\n« Le Domaine de Bellevue » est idéalement situé entre Nantes et Challans, offrant un accès facile au dynamisme environnant grâce à la proximité immédiate de la D63. Pour les familles, les infrastructures sont à portée de main avec l’école maternelle et primaire à 14 minutes* à pied, le collège à 31 minutes* en bus 312 et le futur lycée prévu en 2026 qui sera accessible en 34 minutes* en bus 312 ou 313. Pour les besoins du quotidien, les commerces sont à proximité avec une supérette et une boucherie à 2 minutes* en voiture ou 12 minutes* à pied. Un cabinet médical se trouve à 9 minutes* en voiture, un hypermarché U et Drive et une pharmacie sont à 13 minutes* en voiture. Les habitants pourront se dépenser dans la salle des sports situées à 11 minutes* à pied qui met à disposition des terrains de football, de tennis, etc. Pour se divertir, un cinéma et un parc aquatique sont à moins de 13 minutes* en voiture. \n\nSi vous êtes une famille à la recherche d’une maison prête à vivre dans un environnement paisible pour vos enfants, « Le Domaine de Bellevue » répond à toutes vos attentes. Profitez d’un cadre de vie intimiste où la tranquillité de la campagne vous enchantera, tout en bénéficiant de la proximité de Saint-Philbert-de-Grand-Lieu et son charmant centre-ville à 11 minutes* en voiture, et du dynamisme de Nantes et Challans à 25 minutes* chacun. Ne manquez pas l’opportunité de vivre dans un cadre préservé où le confort et la nature se rencontrent pour créer un cadre de vie agréable.
La Limouzinière
En travaux

Accédez à notre page dédiée au programme "Le Domaine De Bellevue" pour tout savoir sur la résidence, ses prestations et son quartier.
Autres biens disponibles
L'essentiel du projet neuf « Le Domaine De Bellevue »
La Limouzinière accueille le projet immobilier neuf « Le Domaine De Bellevue ». Ce programme immobilier présente 17 appartements, tous neufs, et 16 d'entre eux sont encore sur le marché. De type T2 et T3, ils sont propices à l'investissement locatif mais peuvent également convenir pour une résidence principale ou secondaire. Éligibles au dispositif de droit commun, les biens seront terminés fin décembre 2027.


