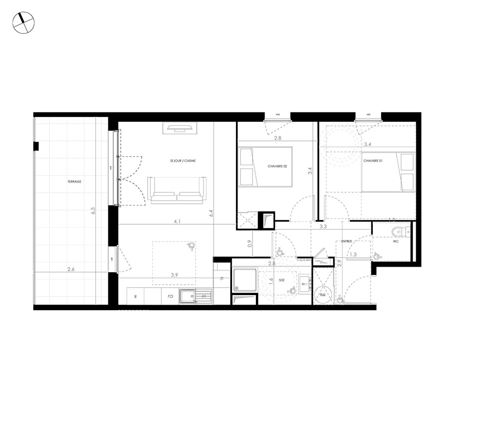
Appartement T3 n°3106 à Cournonterral (34660)
Prix : nous consulter
Le Clos Des Violettes à Cournonterral
À noter
- Cournonterral
- Livraison 4ème trimestre 2027
- Résidence principale/secondaire
- Investissement locatif
- Votre suivi personnalisé Peterson.fr
- Garanti prix direct promoteur
Prestations et équipements
À propos du programme
Devenez propriétaire d'un appartement neuf à Cournonterral !Au coeur de Cournonterral, charmant village entre vignes et garrigue à seulement 25 minutes de Montpellier, Nexity vous dévoile Le Clos des Violettes, composé de 20 logements du 2 au 4 pièces à partir de 174 000 . Cette résidence est conçue pour répondre aux attentes de confort, de praticité et de qualité de vie. Idéalement située à l'angle de la rue des Carignans et des Bleuets, à deux pas du centre-ville, des écoles, des commerces et des transports, cette adresse vous offre un quotidien facilité dans un environnement résidentiel calme et verdoyant. Les appartements bénéficient d'un extérieur (balcon ou terrasse), de stationnements en sous-sol, et de plans optimisés pour maximiser l'espace et la lumière naturelle. Un projet Nexity pensé pour durer, à la fois fonctionnel, agréable à vivre et idéal pour habiter ou investir. Pour toute information complémentaire, prenez contact avec nous !
Cournonterral
En travaux

Accédez à notre page dédiée au programme "Le Clos Des Violettes" pour tout savoir sur la résidence, ses prestations et son quartier.
Autres biens disponibles
Pour ce qui est du nouveau projet immobilier « Le Clos Des Violettes »
Le programme immobilier neuf « Le Clos Des Violettes » s'intègre à Cournonterral. Ce programme se compose de 16 appartements neufs, dont 12 sont encore disponibles à ce jour. De type T2, T3 et T4, ils peuvent s'adapter aux exigences propres à un investissement locatif mais aussi à celles d'une résidence principale ou secondaire. Éligibles au dispositif de droit commun, les logements sont annoncés fin mars 2028.



