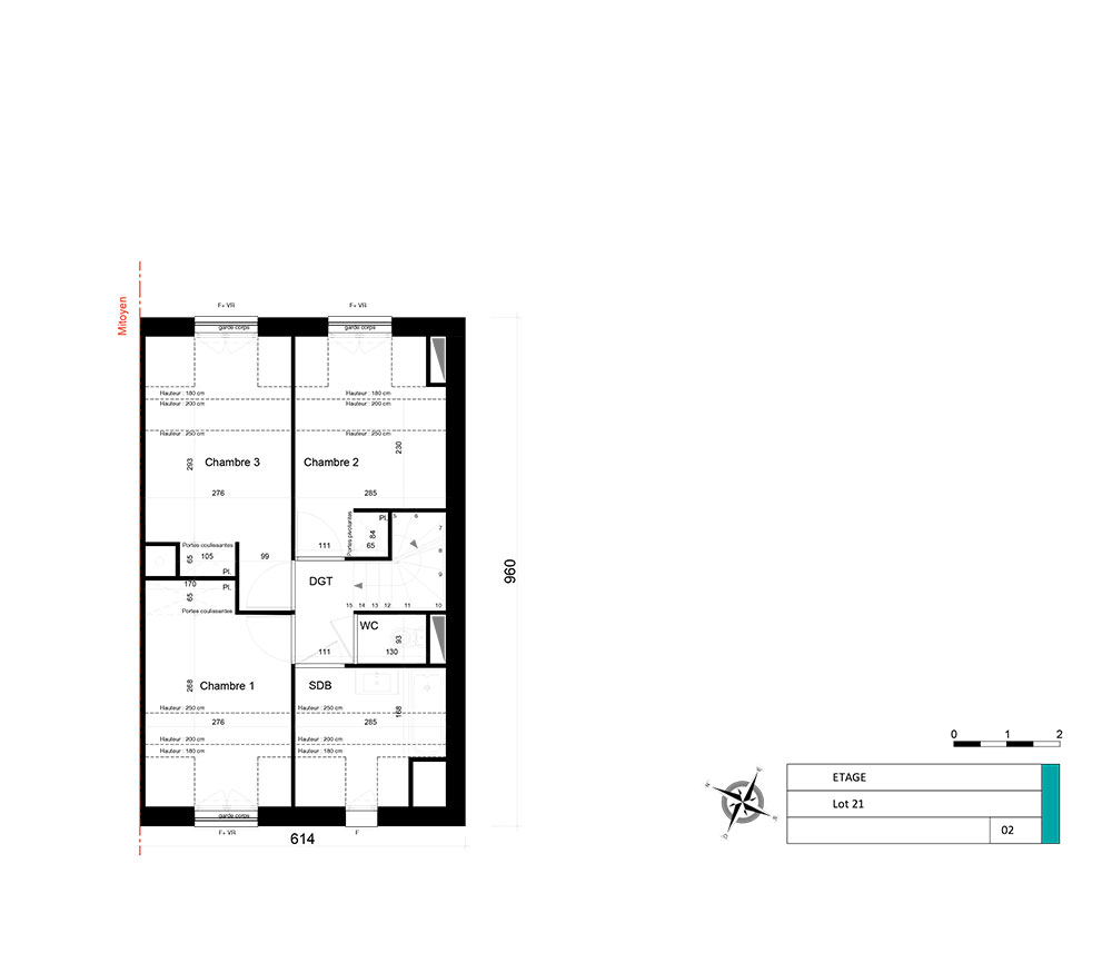
Maison T4 n°LOT21 à Audresselles (62164)
Prix : nous consulter
L'Orée des Caps à Audresselles
À noter
- Audresselles
- Livraison 2ème trimestre 2028
- Votre suivi personnalisé Peterson.fr
- Garanti prix direct promoteur
Prestations et équipements
À propos du programme
À 1h30 de Lille, 2h de Bruxelles et 2h30 de Londres, Audresselles est l’un des villages renommés de la Côte d’Opale.
Bercée par la Manche, cette commune, nichée entre Wimereux et Wissant, déroule ses plages authentiques et ses sentiers entre falaises, dunes et forêts. Proche des célèbres caps de Blanc-Nez et Gris-Nez , cet ancien village de pêcheurs s’est imposé comme l’un des joyaux du Grand Site des Deux Caps.
À Audresselles, les habitués aiment flâner le long des restaurants de la rue Marin la Meslée, profitant notamment de l’animation du marché, ou se promener au bord de la mer et sur le sentier de randonnée menant au cap. Village au charme international et à la qualité de vie préservée, Audresselles invite chacun à se ressourcer, au son des goélands et au parfum des embruns.
Audresselles
En travaux

Accédez à notre page dédiée au programme "L'Orée des Caps" pour tout savoir sur la résidence, ses prestations et son quartier.
Autres biens disponibles
L'essentiel du programme neuf « L'Orée des Caps »
Le projet immobilier neuf « L'Orée des Caps » se situe à Audresselles. 29 maisons neuves sont comprises dans ce projet et il en reste aujourd'hui 29 disponibles. Ce sont des logements de type T4 et T5 qui constituent ce programme immobilier. Éligibles au dispositif de droit commun, les biens sont annoncés au deuxième trimestre 2028.



