Domaine de L'YonDomaine de L'YonDomaine de L'YonDomaine de L'Yon
Domaine de L'Yon
Domaine de L'Yon
Domaine de L'Yon
Domaine de L'Yon

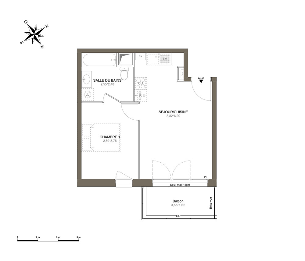
Appartement T2 n°D207 à La Roche-sur-Yon (85000)

Prix : nous consulter

La Roche-sur-Yon (85000)

Domaine de L'Yon à La Roche-sur-Yon

Appartement
T2 / F2 / 2 pièces
36,58 m² habitables
2ème étage
Sud-est
1 chambre
Balcon 6 m²

À noter

  • La Roche-sur-Yon
  • Livraison 4ème trimestre 2027
  • Résidence principale/secondaire
  • Investissement locatif
  • Votre suivi personnalisé Peterson.fr
  • Garanti prix direct promoteur

Prestations et équipements

Terrasse / Balcon

À propos du programme

Découvrez en avant-première la résidence "Les Nouveaux Constructeurs" à La Roche-sur-Yon ! La résidence "Les Nouveaux Constructeurs" propose 4 bâtiments totalisant 83 appartements allant du 2 au 4 pièces. La plupart des logements bénéficient d'espaces extérieurs tels que balcons, terrasses ou jardins privatifs, parfaits pour profiter pleinement de l'environnement verdoyant et de la tranquillité des lieux. Avec des prix attractifs, ce programme est une occasion idéale pour habiter ou investir dans un secteur en plein développement, tout en étant à proximité des équipements et services essentiels. Inscrivez-vous dès maintenant pour découvrir en avant-première cette belle réalisation et profiter du meilleur choix !

La Roche-sur-Yon

En travaux

Livraison 4ème trimestre 2027

Accédez à notre page dédiée au programme "Domaine de L'Yon" pour tout savoir sur la résidence, ses prestations et son quartier.

Autres biens disponibles

Le programme neuf Domaine de L'Yon, situé dans la ville de La Roche-sur-Yon, est composé de 78 logements neufs de type appartement répartis en T2, T3, livrés au 4ème trimestre 2027 et destinés aux différents projets : résidence principale, résidence secondaire et investissement locatif. Ce programme neuf est éligible au dispositif Droit Commun pour habiter ou investir à La Roche-sur-Yon.
Appartement 2 pièces
48 biens disponibles
N° de lot
Surface
Commodités
Étage
Exposition
Lot n°B002B002
41 m²
Terrasse / Balcon
RDC
Exposition : Nord-estNord-est
Lot n°B004B004
37 m²
Jardin
RDC
Exposition : Sud-estSud-est
Lot n°B005B005
37 m²
Jardin
RDC
Exposition : Sud-estSud-est
Lot n°B006B006
38 m²
Jardin
RDC
Exposition : Sud-estSud-est
Lot n°B007B007
41 m²
Jardin
RDC
Exposition : Sud-ouestSud-ouest
Lot n°B008B008
38 m²
Jardin
RDC
Exposition : Sud-ouestSud-ouest
Lot n°B101B101
38 m²
Terrasse / Balcon
Étage 1
Exposition : Nord-ouestNord-ouest
Lot n°B102B102
41 m²
Terrasse / Balcon
Étage 1
Exposition : Nord-estNord-est
Lot n°B104B104
37 m²
Terrasse / Balcon
Étage 1
Exposition : Sud-estSud-est
Lot n°B105B105
37 m²
Terrasse / Balcon
Étage 1
Exposition : Sud-estSud-est
Lot n°B106B106
38 m²
Terrasse / Balcon
Étage 1
Exposition : Sud-estSud-est
Lot n°B107B107
41 m²
Terrasse / Balcon
Étage 1
Exposition : Sud-ouestSud-ouest
Lot n°B201B201
38 m²
Terrasse / Balcon
Étage 2
Exposition : Nord-ouestNord-ouest
Lot n°B202B202
41 m²
Terrasse / Balcon
Étage 2
Exposition : Nord-estNord-est
Lot n°B204B204
37 m²
Terrasse / Balcon
Étage 2
Exposition : Sud-estSud-est
Lot n°B205B205
37 m²
Terrasse / Balcon
Étage 2
Exposition : Sud-estSud-est
Lot n°B206B206
38 m²
Terrasse / Balcon
Étage 2
Exposition : Sud-estSud-est
Lot n°B207B207
41 m²
Terrasse / Balcon
Étage 2
Exposition : Sud-ouestSud-ouest
Lot n°C005C005
37 m²
Jardin
RDC
Exposition : Sud-estSud-est
Lot n°C006C006
37 m²
Jardin
RDC
Exposition : Sud-estSud-est
Lot n°C007C007
38 m²
Jardin
RDC
Exposition : Sud-estSud-est
Lot n°C009C009
38 m²
Jardin
RDC
Exposition : Sud-ouestSud-ouest
Lot n°C101C101
46 m²
Terrasse / Balcon
Étage 1
Exposition : Sud-ouestSud-ouest
Lot n°C104C104
38 m²
Terrasse / Balcon
Étage 1
Exposition : Nord-estNord-est
Lot n°C106C106
37 m²
Terrasse / Balcon
Étage 1
Exposition : Sud-estSud-est
Lot n°C107C107
39 m²
Terrasse / Balcon
Étage 1
Exposition : Sud-estSud-est
Lot n°C108C108
38 m²
Terrasse / Balcon
Étage 1
Exposition : Sud-estSud-est
Lot n°C201C201
46 m²
Terrasse / Balcon
Étage 2
Exposition : Sud-ouestSud-ouest
Lot n°C204C204
38 m²
Terrasse / Balcon
Étage 2
Exposition : Nord-estNord-est
Lot n°C205C205
38 m²
Terrasse / Balcon
Étage 2
Exposition : Nord-estNord-est
Lot n°C206C206
37 m²
Terrasse / Balcon
Étage 2
Exposition : Sud-estSud-est
Lot n°C207C207
37 m²
Terrasse / Balcon
Étage 2
Exposition : Sud-estSud-est
Lot n°C208C208
38 m²
Terrasse / Balcon
Étage 2
Exposition : Sud-estSud-est
Lot n°D001D001
46 m²
Jardin
RDC
Exposition : Sud-ouestSud-ouest
Lot n°D004D004
38 m²
Terrasse / Balcon
RDC
Exposition : Nord-estNord-est
Lot n°D005D005
38 m²
Terrasse / Balcon
RDC
Exposition : Nord-estNord-est
Lot n°D006D006
37 m²
Jardin
RDC
Exposition : Sud-estSud-est
Lot n°D101D101
46 m²
Terrasse / Balcon
Étage 1
Exposition : Sud-ouestSud-ouest
Lot n°D104D104
38 m²
Terrasse / Balcon
Étage 1
Exposition : Nord-estNord-est
Lot n°D105D105
38 m²
Terrasse / Balcon
Étage 1
Exposition : Nord-estNord-est
Lot n°D106D106
37 m²
Terrasse / Balcon
Étage 1
Exposition : Sud-estSud-est
Lot n°D107D107
37 m²
Terrasse / Balcon
Étage 1
Exposition : Sud-estSud-est
Lot n°D108D108
38 m²
Terrasse / Balcon
Étage 1
Exposition : Sud-estSud-est
Lot n°D201D201
46 m²
Terrasse / Balcon
Étage 2
Exposition : Sud-ouestSud-ouest
Lot n°D204D204
38 m²
Terrasse / Balcon
Étage 2
Exposition : Nord-estNord-est
Lot n°D205D205
38 m²
Terrasse / Balcon
Étage 2
Exposition : Nord-estNord-est
Lot n°D206D206
37 m²
Terrasse / Balcon
Étage 2
Exposition : Sud-estSud-est
Lot n°D208D208
38 m²
Terrasse / Balcon
Étage 2
Exposition : Sud-estSud-est
N° de lot
Surface
Commodités
Étage
Exposition
Lot n°B003B003
57 m²
Jardin
RDC
Exposition : Sud-estSud-est
Lot n°B103B103
57 m²
Terrasse / Balcon
Étage 1
Exposition : Sud-estSud-est
Lot n°B108B108
57 m²
Terrasse / Balcon
Étage 1
Exposition : Sud-ouestSud-ouest
Lot n°B109B109
58 m²
Terrasse / Balcon
Étage 1
Exposition : Nord-ouestNord-ouest
Lot n°B203B203
57 m²
Terrasse / Balcon
Étage 2
Exposition : Sud-estSud-est
Lot n°B208B208
57 m²
Terrasse / Balcon
Étage 2
Exposition : Sud-ouestSud-ouest
Lot n°B209B209
58 m²
Terrasse / Balcon
Étage 2
Exposition : Nord-ouestNord-ouest
Lot n°C001C001
58 m²
Jardin
RDC
Exposition : Nord-ouestNord-ouest
Lot n°C002C002
58 m²
Jardin
RDC
Exposition : Nord-ouestNord-ouest
Lot n°C008C008
57 m²
Jardin
RDC
Exposition : Sud-estSud-est
Lot n°C102C102
58 m²
Terrasse / Balcon
Étage 1
Exposition : Nord-ouestNord-ouest
Lot n°C109C109
57 m²
Terrasse / Balcon
Étage 1
Exposition : Sud-estSud-est
Lot n°C110C110
57 m²
Terrasse / Balcon
Étage 1
Exposition : Sud-ouestSud-ouest
Lot n°C202C202
58 m²
Terrasse / Balcon
Étage 2
Exposition : Nord-ouestNord-ouest
Lot n°C203C203
58 m²
Terrasse / Balcon
Étage 2
Exposition : Nord-ouestNord-ouest
Lot n°C209C209
57 m²
Terrasse / Balcon
Étage 2
Exposition : Sud-estSud-est
Lot n°C210C210
57 m²
Terrasse / Balcon
Étage 2
Exposition : Sud-ouestSud-ouest
Lot n°D002D002
58 m²
Jardin
RDC
Exposition : Sud-ouestSud-ouest
Lot n°D003D003
58 m²
Jardin
RDC
Exposition : Nord-ouestNord-ouest
Lot n°D007D007
57 m²
Jardin
RDC
Exposition : Sud-estSud-est
Lot n°D008D008
58 m²
Jardin
RDC
Exposition : Sud-ouestSud-ouest
Lot n°D102D102
58 m²
Terrasse / Balcon
Étage 1
Exposition : Sud-ouestSud-ouest
Lot n°D103D103
58 m²
Terrasse / Balcon
Étage 1
Exposition : Nord-ouestNord-ouest
Lot n°D109D109
57 m²
Terrasse / Balcon
Étage 1
Exposition : Sud-estSud-est
Lot n°D110D110
58 m²
Terrasse / Balcon
Étage 1
Exposition : Sud-ouestSud-ouest
Lot n°D202D202
58 m²
Terrasse / Balcon
Étage 2
Exposition : Sud-ouestSud-ouest
Lot n°D203D203
58 m²
Terrasse / Balcon
Étage 2
Exposition : Nord-ouestNord-ouest
Lot n°D209D209
57 m²
Terrasse / Balcon
Étage 2
Exposition : Sud-estSud-est
Lot n°D210D210
58 m²
Terrasse / Balcon
Étage 2
Exposition : Sud-ouestSud-ouest