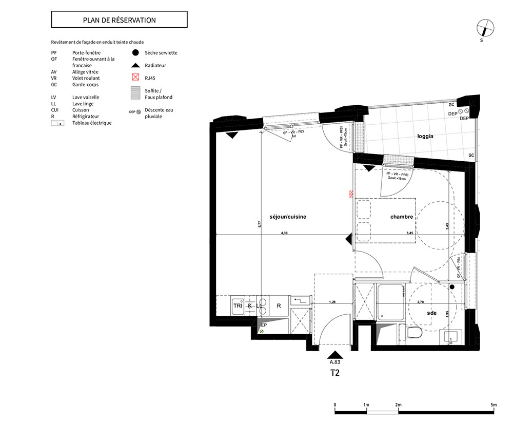
Appartement T2 n°A83 à Aubervilliers (93300)
Prix : nous consulter
Caractère à Aubervilliers
À noter
- Aubervilliers
- Livraison 4ème trimestre 2028
- Résidence principale/secondaire
- Investissement locatif
- Votre suivi personnalisé Peterson.fr
- Garanti prix direct promoteur
À propos du programme
La résidence CARACTÈRE hérite d’un emplacement idéal en retrait de la rue où tout est accessible à pied et où l'environnement paysager contribue au bien-être. Vous découvrirez des appartements confortables du studio au 5 pièces duplex bénéficiant de grands extérieurs et vues dégagées au sein d’une architecture contemporaine au teintes sable.
À quelques pas de Paris, Aubervilliers évolue et se transforme depuis plusieurs années, réservant un cadre de vie de plus en plus prisé.
L’arrivée de nouvelles lignes de métro, la future gare du Grand Paris Express, le Campus Condorcet, l’un des tout premiers pôles de recherche européen en sciences humaines et sociales continuent d’augmenter son accessibilité et son attractivité. Après le réaménagement des berges du canal Saint-Denis, du cœur de ville, c’est le Fort d’Aubervilliers qui est en plein renouveau. C’est une nouvelle qualité de vie urbaine et familiale qui s’offre aux habitants au gré des arts, du sport et de la nature.
Aubervilliers
En travaux

Accédez à notre page dédiée au programme "Caractère" pour tout savoir sur la résidence, ses prestations et son quartier.
Autres biens disponibles
Description du programme neuf « Caractère »
« Caractère » est un programme immobilier neuf qui est situé à Aubervilliers. 38 sont encore sur le marché sur les 38 duplex et appartements neufs qui sont proposés dans ce projet. De type Studio, T2, T3, T4 et T5, ils sont aussi bien indiqués pour une résidence principale ou secondaire, que pour un investissement locatif. Éligibles au dispositif de droit commun, les biens sont annoncés fin décembre 2028.
Investissez malin !
Ce programme peut bénéficier de nombreux avantages financiers adaptés à votre projet immobilier neuf :
Je recherche un bien pour...



