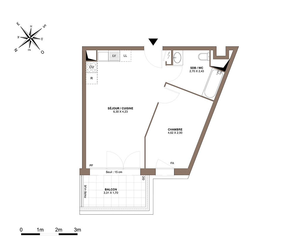
Appartement T2 n°D112 à Montlhéry (91310)
Prix : nous consulter
Esprit Village à Montlhéry
À noter
- Montlhéry
- Livraison 4ème trimestre 2028
- Résidence principale/secondaire
- Investissement locatif
- Votre suivi personnalisé Peterson.fr
- Garanti prix direct promoteur
Prestations et équipements
À propos du programme
L'architecture contemporaine de cette résidence a été pensée pour offrir un cadre de vie à la fois élégant et apaisant, entre modernité urbaine et ambiance résidentielle. Habillée de matériaux durables et de finitions soignées, elle s'intègre harmonieusement dans son environnement. Un coeur d'îlot végétalisé, véritable parenthèse de verdure, accueillera 23 arbres et des massifs fleuris, favorisant la biodiversité et le bien-être au quotidien. Les appartements, du 2 au 4 pièces, profitent d'une belle lumière naturelle, de multiples orientations et, pour certains, d'une configuration traversante. Tous bénéficient d'un espace extérieur privatif : balcon, terrasse ou jardin, pour savourer chaque saison en plein air.
Montlhéry
En travaux

Accédez à notre page dédiée au programme "Esprit Village" pour tout savoir sur la résidence, ses prestations et son quartier.


