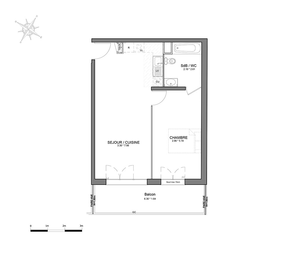
Appartement T2 n°A107 à Juvisy-sur-Orge (91260)
Prix : nous consulter
L'Atelier du Parc à Juvisy-sur-Orge
À noter
- Juvisy-sur-Orge
- Livraison 4ème trimestre 2028
- Résidence principale/secondaire
- Investissement locatif
- Votre suivi personnalisé Peterson.fr
- Garanti prix direct promoteur
Prestations et équipements
À propos du programme
L'architecture de cette résidence a été pensée pour offrir un cadre de vie harmonieux et contemporain, tout en s'intégrant parfaitement au quartier. Composée de matériaux de qualité et de finitions raffinées, la résidence propose une ambiance chaleureuse et intimiste, avec seulement deux étages. Le coeur d'îlot végétalisé, agrémenté de nombreux arbres plantés, favorise la quiétude et le bien-être des résidents. Les appartements, du studio au 5 pièces, bénéficient d'une luminosité naturelle optimale grâce à des orientations multiples, certaines unités étant traversantes. La plupart des logements disposent d'un espace extérieur privatif sous forme de jardin individuel, terrasse ou balcon, offrant à ses habitants un lieu de détente en plein coeur de la ville.
Juvisy-sur-Orge
En travaux

Accédez à notre page dédiée au programme "L'Atelier du Parc" pour tout savoir sur la résidence, ses prestations et son quartier.


