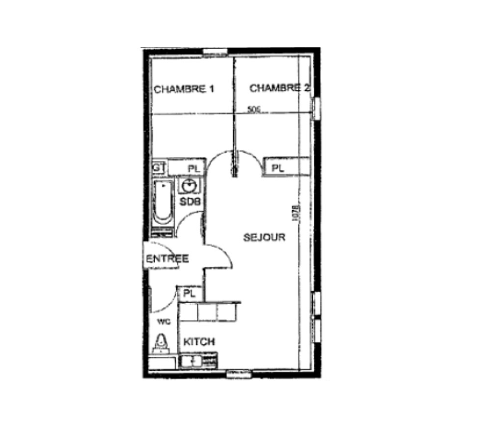
Appartement T3 n°18 à Limoges (87000)
Prix : nous consulter
Limoges à Limoges
À noter
- Limoges
- 4ème trimestre 2008
- Investissement locatif
- Votre suivi personnalisé Peterson.fr
- Garanti prix direct promoteur
Ce programme propose des biens éligibles aux dispositifs de défiscalisation suivant :
À propos du programme
Située à seulement 5 minutes en voiture du centre-ville et de la gare SNCF de Limoges, la résidence bénéficie d’un emplacement stratégique à proximité directe de l’autoroute A20. Elle se trouve également à deux pas des bords de Vienne et à 12 km de l’aéroport, offrant un accès rapide et pratique pour les voyageurs d’affaires comme pour les séjours prolongés.
La résidence propose 134 appartements spacieux et fonctionnels, du studio de 21 m² pour 2 personnes au T3 de 65 m² pouvant accueillir jusqu’à 6 personnes. Tous les logements disposent d’un espace de travail et d’une cuisine entièrement équipée, idéale pour un séjour en toute autonomie. Pour le confort des professionnels, de nombreux services à la carte sont proposés : bagagerie, wifi haut débit, parking privé et sécurisé, laverie, ménage, petit-déjeuner buffet et restauration Comptoir City.

Accédez à notre page dédiée au programme "Limoges" pour tout savoir sur la résidence, ses prestations et son quartier.





