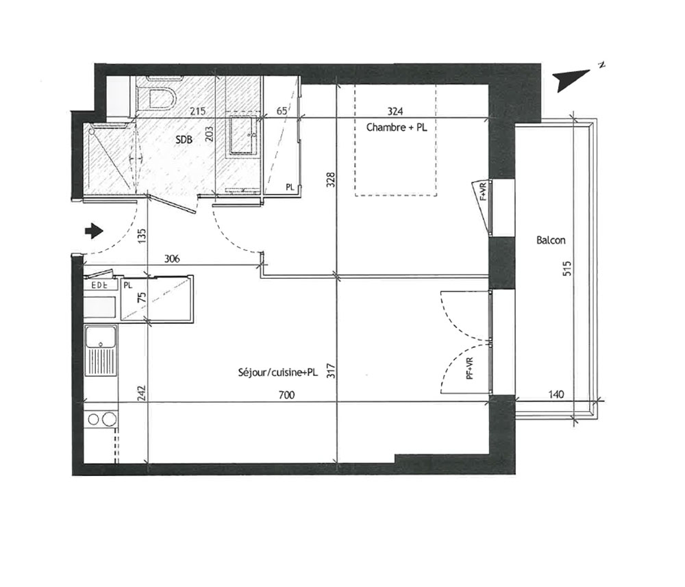
Appartement T2 n°323 à Vitry-le-François (51300)
Prix : nous consulter
La Salamandre à Vitry-le-François
À noter
- Vitry-le-François
- 3ème trimestre 2020
- Investissement locatif
- Votre suivi personnalisé Peterson.fr
- Garanti prix direct promoteur
Ce programme propose des biens éligibles aux dispositifs de défiscalisation suivant :
À propos du programme
Idéalement située à moins de 5 minutes à pied du centre-ville de Vitry-le-François, la résidence bénéficie d’un emplacement privilégié à proximité immédiate de la médiathèque et de la mairie. Les résidents profitent d’un cadre de vie pratique et agréable, à deux pas de toutes les commodités et à moins de 15 minutes à pied de la gare, facilitant ainsi les déplacements et la vie quotidienne.
La résidence propose des appartements confortables, lumineux et bien agencés, du studio de 24 m² au T3 de 62 m². Tous disposent d’une salle de bain adaptée, d’une cuisine aménagée, et sont prolongés d’un balcon, d’une terrasse ou d’un jardin privatif avec mobilier inclus, pour profiter pleinement des beaux jours.
De nombreux services accompagnent le quotidien des résidents : navette, animations, wifi, accueil, blanchisserie et services à la personne. Les espaces communs, chaleureux et variés, favorisent la convivialité et le bien-être : salon de coiffure, bar et restaurant, piscine intérieure et sauna, salon bibliothèque, atelier, salle de gym et jardin paysager.

Accédez à notre page dédiée au programme "La Salamandre" pour tout savoir sur la résidence, ses prestations et son quartier.





