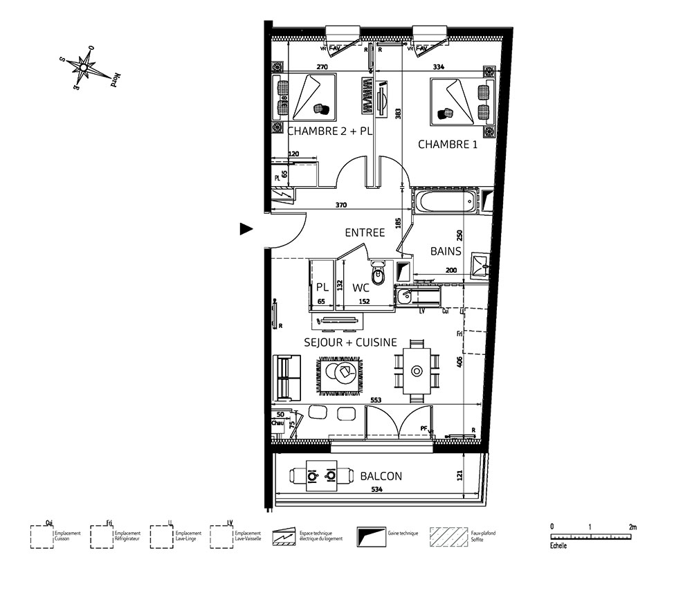
Appartement T3 n°1016 à Saran (45770)
Prix : nous consulter
Fragrance à Saran
À noter
- Saran
- Livraison 4ème trimestre 2027
- Résidence principale/secondaire
- Investissement locatif
- Votre suivi personnalisé Peterson.fr
- Garanti prix direct promoteur
Prestations et équipements
À propos du programme
Découvrez la résidence Fragrance et réalisez un investissement idéal au coeur d'une résidence soignée !Bienvenue à Saran, au sein de notre nouvelle résidence "Fragrance". Cette nouvelle résidence incarne un art de vivre contemporain, en harmonie avec le cadre verdoyant et résidentiel de Saran. Située dans un quartier calme, à proximité immédiate des commerces, des écoles et des transports, cette réalisation à l'architecture élégante et soignée offre un quotidien serein, entre nature et commodités. Les appartements, du T1 bis au T3, sont conçus pour offrir des intérieurs lumineux et bien agencés, adaptés à tous les projets de vie : premier achat, résidence principale ou pied-à-terre fonctionnel. Ici, tout est accessible à pied, à vélo ou en bus. Idéal pour un mode de vie pratique et durable !
Saran
En travaux

Accédez à notre page dédiée au programme "Fragrance" pour tout savoir sur la résidence, ses prestations et son quartier.
Autres biens disponibles
Tout savoir sur le programme neuf « Fragrance »
Le projet de logements neufs « Fragrance » est un programme situé à Saran. Ce projet propose toujours 52 de ses 52 appartements neufs qui ne sont pas encore réservés. Allant du T1 au T3, ils s'adressent autant aux intéressés par l'investissement locatif qu'aux personnes à la recherche d'une résidence principale ou secondaire. Fin décembre 2027, les biens seront mis à disposition des résidents. De plus, sachez qu'ils sont éligibles au dispositif de droit commun.
